

Penthouse zum Kauf364 m²
364 m²
Fantastisches Penthouse mit Meerblick, Versilia
Merkmale
- Dachgeschoss
- Garage
- Terrasse
- Meerblick
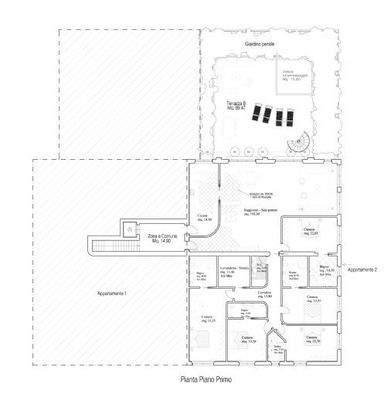
Grundrisse
Verschaffe dir einen genauen Überblick über die Raumaufteilung.

Bausubstanz und Energie
Möchtest du Details zum Energieverbrauch?

- Zustand der ImmobilieNeubau, Gepflegt
Preisdetails
Provision für Käufer
4% inkl. MwSt
Lage

Forte dei Marmi
Der Anbieter hat die genaue Adresse nicht freigegeben
Weitere Informationen
Weitere Services
Lust auf eine Besichtigung?
Eine Frage zur Immobilie?
Über den Anbieter
Martinweg 8, 94032 Bad Füssing
10 Jahre Partnerschaft

Frau Judith LanyiDein Kontakt
Online-ID: 23WC7C7KER7Y
Referenznummer: FM 14
Wie zufrieden bist du mit dieser Seite (nicht mit der Immobilie selbst)?
- Immobilie
- Exposé


