

Doppelhaushälfte zum Kauf • provisionsfrei699700 €5.341 €/m²5 Zimmer • 131 m² • 319 m² Grundstück
699700 €
5.341 €/m²
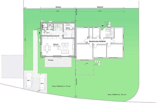
5 Zimmer • 131 m² • 319 m² Grundstück
Baugenehmigung erteilt ! - Neubau einer schönen Doppelhaushälfte mit gehobener Innenausstattung in Zirndorf
Merkmale
- 2 Geschosse
- 319 m² Grundstück
- Kelleranteil
- Gäste-WC
- Badezimmer: Badewanne, Bad mit Dusche, Bad mit Fenster
- Bodenbelag: Fliesen
Realisiere Dein Projekt
Bausubstanz und Energie
Energieausweis
A+
- Baujahr2025
- Zustand der ImmobilieNeubau, Massivhaus, Projektiert
- HeizungsartFuĂźbodenheizung
- EnergieträgerLuft-/Wasser-Wärmepumpe
Preisdetails
Kaufpreis
699700 €
5.341,22 €/m²
Provision für Käufer
provisionsfrei
Geschätzte Gesamtkosten
738.185 €1
Kaufpreis
699.700 €
Kaufnebenkosten
38.485 €
2Notarkosten (1,5%)
10.496 €
Grunderwerbsteuer (3,5%)
24.490 €
Grundbucheintrag (0,5%)
3.499 €
1Der angezeigte Wert ist eine automatisch berechnete Schätzung von immowelt.
2Bei den Angaben handelt es sich um ortsübliche Werte. Individuelle Kosten können abweichen.
Lage

Sudetenstraße, Zirndorf (90513)
Weitere Informationen
Weitere Services
Lust auf eine Besichtigung?
Eine Frage zur Immobilie?
Ăśber den Anbieter
R + S Immobilien GmbHMaklerbĂĽro
Bucher Str. 3a, 90522 Oberasbach
Partnerschaft

Herr Daniel SchwientekDein Kontakt
Weitere Unterlagen
Online-ID: 2g9fr5t


R + S Immobilien GmbH
Wie zufrieden bist du mit dieser Seite (nicht mit der Immobilie selbst)?

