

Wohntraumfinder GmbH
Herr Gunnar Andrä
017 ···
Nr. anzeigenPreise & Kosten
Kaution
8.325,00
Provision für Mieter
Bitte beachte, das Angebot kann bei Vertragsabschluss die Zahlung einer Provision beinhalten. Weitere Informationen erhältst Du vom Anbieter.
Warum sehe ich diese Anzeige? – Du siehst diese Anzeige basierend auf Ihrer Navigation auf unserer Website und den Suchkriterien, die du verwendet hast.
Lage
Das Büro liegt direkt im Rabenstein Center, einem zentralen Einkaufsort in Rabenstein.
In der näheren Umgebung finden Sie sowohl Einkaufsmöglichkeiten (Einzelhandel, Drogerie, Bäcker, Fleischer,...) als auch ärztliche Versorgung (Krankenhaus, Ärztehaus).
Haltestellen des öffentlichen Nahverkehrs (Bushaltestelle direkt...
Büro-/Praxisfläche
Kategorie
Bürofläche
Baujahr
1997
Bezug
sofort
Geschoss
2. Geschoss
Energie & Heizung
Warum sehe ich diese Anzeige? – Du siehst diese Anzeige basierend auf Ihrer Navigation auf unserer Website und den Suchkriterien, die du verwendet hast.
Wärme
Strom
Energieausweistyp
Verbrauchsausweis
Gebäudetyp
Nicht-Wohngebäude
Baujahr laut Energieausweis
1978
Wesentliche Energieträger
GAS
Gültigkeit
bis 25.02.2029
Endenergieverbrauch (Wärme)
52,60 kWh/(m²·a)
Endenergieverbrauch (Strom)
119,00 kWh/(m²·a)
Weitere Energiedaten
Heizungsart
Zentralheizung
Details
Objektbeschreibung
Das um 1997 erbaute Rabenstein Center ist eine zentrale Anlaufstelle in Rabenstein für den täglichen Bedarf. Das Gebäude bietet zudem neben geräumigen Büro- und Praxisflächen ausreichende Archivierungs- und Lagermöglichkeiten. Ein Personenaufzug ermöglicht Ihnen den barrierefreien Zugang.
Ankommen und loslegen -...
Ausstattung
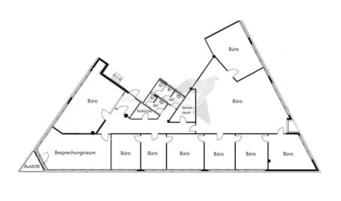
Die Gewerbeeinheit mit ca. 400,00 m² befindet sich im 2. Obergeschoss rechts und ist wie folgt ausgestattet:
- 9 Büros in verschiedenen Größen
- Besprechungsraum mit Austritt (kann als zusätzliches Büro genutzt werden)
!! Die hochwertigen Büromöbel können mit angemietet werden !!
- Teeküche
-...
Weitere Informationen
Stichworte
Gesamtfläche: 396,40 m², Anzahl der Gewerbeeinheiten: 1, Wohnungsnr.: C222, Distanz zur Autobahn: 1.50, Distanz vom Zentrum: 7.50
Anbieter der Immobilie
Wohntraumfinder GmbH
Limbacher Str. 345, 09117 Chemnitz

Online-ID: 2ga9u5r
Referenznummer: K_RC_C222
Finde Angebote wie dieses
Hier geht es zu unserem Impressum, den Allgemeinen Geschäftsbedingungen, den Hinweisen zum Datenschutz und nutzungsbasierter Online-Werbung.