
Jacholke Immobilien
+49 ···
Nr. anzeigenPreise & Kosten
Provision für Käufer
3,57 % inkl. ges. MwSt.
Lage
Diese charmante Immobilie befindet sich in der Ortschaft Abbendorf, die zur Gemeinde Diesdorf gehört. Diese idyllische Lage besticht durch ihre natürliche Schönheit und die Ruhe des ländlichen Lebens. Umgeben von üppigen Feldern und Wäldern, bietet dieses Anwesen eine perfekte Rückzugsmöglichkeit vom städtischen Trubel. Die...
Das Haus
Baujahr
1850
Bezug
Ab sofort
Energie & Heizung
Warum sehe ich diese Anzeige? – Du siehst diese Anzeige basierend auf Ihrer Navigation auf unserer Website und den Suchkriterien, die du verwendet hast.
Wärme
Energieausweistyp
Bedarfsausweis
Gebäudetyp
Nicht-Wohngebäude
Baujahr laut Energieausweis
1850
Wesentliche Energieträger
GAS
Gültigkeit
bis 02.12.2030
Endenergiebedarf (Wärme)
113,00 kWh/(m²·a)
Weitere Energiedaten
Energieträger
Gas
Details
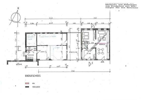
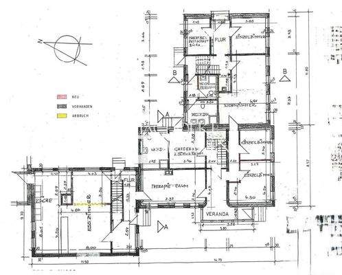
Objektbeschreibung
Zum Verkauf steht eine außergewöhnliche Gewerbeimmobilie, bestehend aus drei beeindruckenden Gebäuden, die historischen Charme mit modernem Komfort vereinen. Die Immobilie umfasst:
-Ein Gründerzeithaus aus dem Jahr 1850 mit einer großzügigen Wohn- und Nutzfläche von 620 m²
-Ein Jugendstilhaus von 1911 mit 244...
Ausstattung
Diese Immobilie besteht aus 3 Häusern und einem großzügigen Grundstück
Gründerzeithaus: 620qm
1.) Fenster/Türen: Kunstofffenster mit Isolierverglasung 1999 und 13 Fenster 2012
2.) Elektrik/Strom: 1999
3.) Bodenbelag: Fließen, Linoleum EG komplett gefließt
4.) Wände: Wände und Decken sind taeziert und...
Weitere Informationen
Sonstiges
Suchen Sie nach einem Immobilienunternehmen mit Erfahrung im Verkauf von Gewerbeimmobilien im ländlichen Raum? Wir sind Ihr zuverlässiger Partner! Mit über 40 Jahren Erfahrung und unserer Spezialisierung kennen wir den Markt und die besonderen Anforderungen in der Region.
Wir unterstützen Sie beim Kauf...
Anbieter der Immobilie
Online-ID: 2gb3u5e
Referenznummer: 238
Finde Angebote wie dieses
Hier geht es zu unserem Impressum, den Allgemeinen Geschäftsbedingungen, den Hinweisen zum Datenschutz und nutzungsbasierter Online-Werbung.