

Garda Haus Srl
Frau Olga Heller
+39 ···
Nr. anzeigenPreise & Kosten
Provision für Käufer
ja maklerprovision im Preis nicht inbegriffen inkl. MwSt.
Das Haus
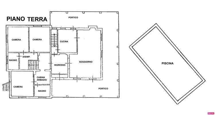
Kategorie
Villa
Baujahr
1980
Energie & Heizung
Warum sehe ich diese Anzeige? – Du siehst diese Anzeige basierend auf Ihrer Navigation auf unserer Website und den Suchkriterien, die du verwendet hast.
Energieausweistyp
Bedarfsausweis
Gebäudetyp
Wohngebäude
Baujahr laut Energieausweis
1980
Gültigkeit
bis 07.11.2034
Endenergiebedarf
225,60 kWh/(m²·a)
Weitere Energiedaten
Heizungsart
offener Kamin
Details
Objektbeschreibung
Kurzbeschreibung
Wir begleiten Sie nach Terminvereinbarung persönlich zu den Objekten und stehen Ihnen während des gesamten Prozesses des Immobilienerwerbs als starker und kompetenter Partner zur Seite. Mit uns gehen Sie keine Kompromisse ein und überlassen nichts dem Zufall. Umfassender Service ist für uns nicht nur ein...
Preisinformation
4 Tiefgaragenstellplätze
Weitere Informationen
Sonstiges
Wir begleiten Sie nach Terminvereinbarung persönlich zu den Objekten und stehen Ihnen während des gesamten Prozesses des Immobilienerwerbs als starker und kompetenter Partner zur Seite. Mit uns gehen Sie keine Kompromisse ein und überlassen nichts dem Zufall. Umfassender Service ist für uns nicht nur ein Wort...
Anbieter der Immobilie
Garda Haus Srl
Via Meucci 77, 25080 PADENGHE SUL GARDA

Online-ID: 2gbte5q
Referenznummer: IS-25
Finde Angebote wie dieses
Hier geht es zu unserem Impressum, den Allgemeinen Geschäftsbedingungen, den Hinweisen zum Datenschutz und nutzungsbasierter Online-Werbung.