

ScanHaus Marlow
Herr Birger Rohde
016 ···
Nr. anzeigenPreise & Kosten
Provision für Käufer
provisionsfrei
Lage
Wir bitten um Ihr Verständnis, dass wir ohne ein persönliches Gespräch über das Haus, keine Grundstücksdaten weiterleiten!
Der Preis für das Grundstück ist im Verkaufspreis nicht enthalten.
Profitieren Sie von unserem umfang- und weitreichenden Grundstücksservice.
Wir können Ihren Hauswunsch auch auf...
Das Haus
Kategorie
Bungalow
Energie & Heizung
Warum sehe ich diese Anzeige? – Du siehst diese Anzeige basierend auf Ihrer Navigation auf unserer Website und den Suchkriterien, die du verwendet hast.
Weitere Energiedaten
Haustyp
Fertighaus, KfW 40
Heizungsart
Luft-/Wasser-Wärmepumpe
Details
Objektbeschreibung
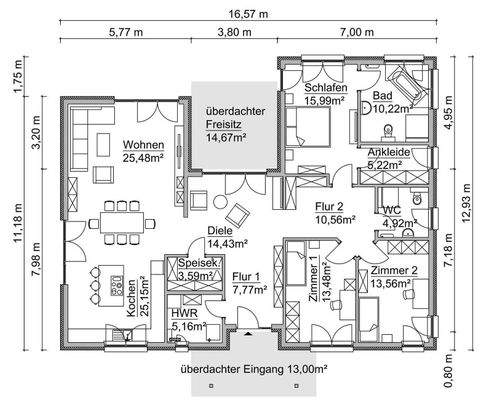
Dieser Bungalow besticht durch modernstes Design und großzügige Räume. Es ist auf einer Ebenen geplant. Eines der Highlights dürfte der separierte Elternbereich sein mit Schlafzimmer, Ankleide und eigenem Badezimmer. Dies bietet einen geeigneten und geräumigen Rückzugsort.
Dieses Haus ist im Innenausbau schon Fast-Fertig...
Ausstattung
ScanHaus Marlow ist einer der führenden Anbieter von modernen, umweltfreundlichen und nachhaltigen Fertighäusern. Wir bieten Ihnen mehr als 100 attraktive Fertighaustypen in modernster Bauweise, energieeffizient - in zertifizierter Qualität (Made in Germany).
Entscheiden Sie selbst, ob Ihr Haus als Ausbauhaus...
Weitere Informationen
Stichworte
Energiestandard: Niedrigenergie
Anbieter der Immobilie
ScanHaus Marlow
An der Schule 86, 12623 Berlin-Mahlsdorf

Online-ID: 2gc5w5y
Referenznummer: SK SH 169 WB A 2
Finde Angebote wie dieses
Hier geht es zu unserem Impressum, den Allgemeinen Geschäftsbedingungen, den Hinweisen zum Datenschutz und nutzungsbasierter Online-Werbung.