
Immobiliaris GmbH
Herr Bernhard Kramer-Drauberg
+43 ···
Nr. anzeigenPreise & Kosten
Kaution
6 Bruttomonatsmieten
Provision für Mieter
3 Bruttomonatsmieten zzgl. 20% USt.
Warum sehe ich diese Anzeige? – Du siehst diese Anzeige basierend auf Ihrer Navigation auf unserer Website und den Suchkriterien, die du verwendet hast.
Lage
- Beste Innenstadtlage
- perfekte Anbindung an das öffentliche Verkehrsnetz
- zahlreiche Einkaufsmöglichkeiten, sowie Cafes, Bars und Restaurants vor der Haustüre
- ideale Anbindung und Infrastruktur durch die zentrale Lage
- Straßenbahnlinie 3, 6
Büro-/Praxisfläche
Kategorie
Bürofläche
Energie & Heizung
Warum sehe ich diese Anzeige? – Du siehst diese Anzeige basierend auf Ihrer Navigation auf unserer Website und den Suchkriterien, die du verwendet hast.
Weitere Energiedaten
Energieträger
Fernwärme
Details
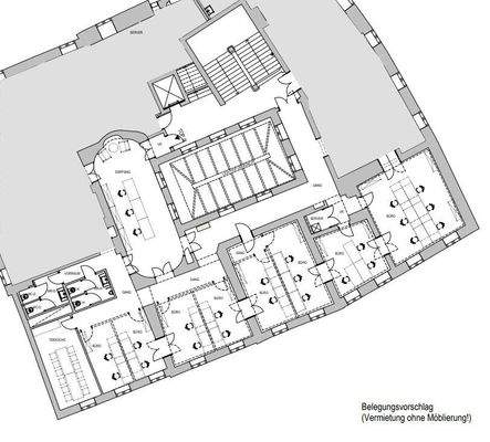
Objektbeschreibung
Sehr geehrte Damen und Herren,
Wir freuen uns, Ihnen eine herausragende Bürofläche zur Miete in der Grazer Innenstadt anzubieten. Diese exquisite Immobilie präsentiert sich im Erstbezug nach umfassender Generalsanierung und vereint modernen Komfort mit dem einzigartigen Charme des historischen Palais...
Preisinformation
Nettokaltmiete: 6.057,09 EUR
Weitere Informationen
Stichworte
Nutzfläche: 417,73 m², Bundesland: Steiermark
Sonstiges: EDV-Verkabelung
Anbieter der Immobilie
Immobiliaris GmbH
Rotenturmstrasse 17, Top 10-12, 1010 WIEN
Online-ID: 2gddd5t
Referenznummer: OBGC20241106103020612612b036102
Finde Angebote wie dieses
Hier geht es zu unserem Impressum, den Allgemeinen Geschäftsbedingungen, den Hinweisen zum Datenschutz und nutzungsbasierter Online-Werbung.