
ÖRAG Immobilien Vermittlung GmbH
Herr Swjatoslaw Sumann
004 ···
Nr. anzeigenPreise & Kosten
inkl. Betriebskosten
Kaution
3 BMM zzgl. Ust.
Provision für Mieter
3 BMM zzgl. 20% Ust. inkl. MwSt.
Warum sehe ich diese Anzeige? – Du siehst diese Anzeige basierend auf Ihrer Navigation auf unserer Website und den Suchkriterien, die du verwendet hast.
Lage
Mehrere Buslinien verbinden Reininghausgründe mit anderen Stadtteilen und dem Stadtzentrum. Der Hauptbahnhof ist mit dem öffentlichen Nahverkehr gut erreichbar und bietet Verbindungen zu nationalen und Internationalen Zielen. Die Straßenbahnlinie 4, die das Stadtzentrum und andere wichtige Orte verbindet, ist bequem...
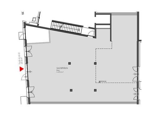
Die Ladenfläche
Kategorie
Laden
Baujahr
2018
Bezug
ab sofort
Erdgeschoss
Energie & Heizung
Warum sehe ich diese Anzeige? – Du siehst diese Anzeige basierend auf Ihrer Navigation auf unserer Website und den Suchkriterien, die du verwendet hast.
Heizwärmebedarf (HWB)
69,50 kWh/(m²·a)
Gesamtenergieeffizienz (fGEE)
0,57
Details
Objektbeschreibung
Kurzbeschreibung
Attraktive Geschäftsfläche - mit variablen Größen, teilbar und anpassbar!
Objekt
Attraktive Geschäftsfläche - mit variablen Größen, teilbar und anpassbar!
Diese modernen Geschäftsflächen bieten ihnen die Möglichkeit, Ihre Geschäftsräume nach individuellen Bedürfnissen zu gestalten - sei es...
Ausstattung
Die Geschäftsflächen werden im Edelrohbau vermietet. Der Ausbau nach Ihren Wünschen und Anforderungen - kann vereinbart werden.
Preisinformation
Nettokaltmiete: 2.719,86 EUR
Weitere Informationen
Sonstiges
Wir sind eine Tochtergesellschaft der ÖRAG-Österreichische Realitäten AG, Wien, genannt ÖRAG, und es besteht daher unter Umständen ein sonstiges wirtschaftliches Naheverhältnis im Sinne des Maklergesetzes zur ÖRAG und ihren anderen Tochtergesellschaften in Österreich. Das Naheverhältnis zur ÖRAG ergibt sich zB...
Anbieter der Immobilie
Online-ID: 2geab5b
Referenznummer: 109240861_2
Finde Angebote wie dieses
Hier geht es zu unserem Impressum, den Allgemeinen Geschäftsbedingungen, den Hinweisen zum Datenschutz und nutzungsbasierter Online-Werbung.