

AllFa-Immobilien
Frau Isabelle Leseberg
015 ···
Nr. anzeigenPreise & Kosten
Provision für Käufer
3,57 % inkl. MwSt.
Lage
Das hier angebotene Objekt befindet sich in einem zentralen Wohngebiet von Mönchengladbach im Stadtteil Bonnenbroich und gehört zum südlichen Stadtbezirk zwischen Mönchengladbach Nord, Rheydt, Korschenbroich und Jüchen. Trotz des städtischen Standortes bietet das Umfeld reichlich Kultur, Theater und viele Eindrücke des alten...
Das Haus
Kategorie
Reihenmittelhaus
Baujahr
1911
Bezug
nach Absprache
Derzeitige Nutzung
vermietet
Energie & Heizung
Warum sehe ich diese Anzeige? – Du siehst diese Anzeige basierend auf Ihrer Navigation auf unserer Website und den Suchkriterien, die du verwendet hast.
Weitere Energiedaten
Energieträger
Gas
Heizungsart
Zentralheizung
Details
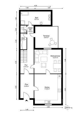
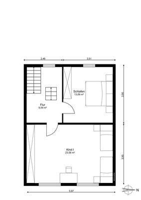
Objektbeschreibung
AllFa - Vermietetes Reihenmittelhaus mit Potenzial in guter Lage von Mönchengladbach-Bonnenbroich!
Dieses Einfamilienhaus wurde im Jahre 1911 auf einem 252 m² großen Grundstück in Massivbauweise errichtet und bietet durch eine besondere Deckenhöhe von ca. 3 m auf jeder Etage und einer großzügigen Raumaufteilung ein...
Ausstattung
- ruhige, zentrale Wohnanlage
- Jahresnettokaltmiete: 7.119,00 €
- offener Kamin
- alle Fenster 8mm Verglasung
- besonderer Dielenboden
- behandelte Holztreppe mit besonderem Charme
- Gasheizung mit allen Leitungen in 1998
- vollunterkellert
- schön angelegter Garten
- Terrasse mit...
Weitere Informationen
Sonstiges
Sie möchten den aktuellen Wert Ihrer Immobilie wissen? Ob für die persönliche Vermögensaufstellung, eine neue Finanzierung, oder die momentane Marktsituation - einfach anrufen, wir unterstützen Sie sehr gerne unverbindlich!
Sie brauchen Hilfestellung für eine maßgeschneiderte Finanzierung? Sprechen Sie uns...
Anbieter der Immobilie

Online-ID: 2gep654
Referenznummer: 1612
Finde Angebote wie dieses
Hier geht es zu unserem Impressum, den Allgemeinen Geschäftsbedingungen, den Hinweisen zum Datenschutz und nutzungsbasierter Online-Werbung.