




Bürofläche zur Miete750 €4 Zimmer • 162 m² Bürofläche
750 €
4 Zimmer • 162 m² Bürofläche
Großzügige Bürofläche in der Innenstadt von Bad Oeynhausen
Merkmale
- Bezug: Kurzfristiger Bezug möglich.
- 2. Geschoss
- teilweise möbliert
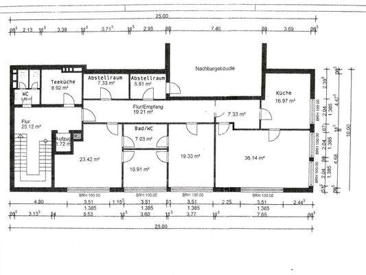
Grundrisse
Grundrisse
1 / 1
Realisiere Dein Projekt
Bausubstanz und Energie
Der Anbieter hat keine Informationen zum Energieverbrauch bereit gestellt.
- HeizungsartZentralheizung
- EnergieträgerÖl
Mietkosten
Nettomiete
750 €
Nebenkosten
350 €
Provision für Mieter
Bitte beachte, das Angebot kann bei Vertragsabschluss die Zahlung einer Provision beinhalten. Weitere Informationen erhältst Du vom Anbieter.
Kaution
1500 €
Lage

Innenstadt, Bad Oeynhausen (32545)
Der Anbieter hat die genaue Adresse nicht freigegeben
Weitere Informationen
Weitere Services
Lust auf eine Besichtigung?
Eine Frage zur Immobilie?
Über den Anbieter
Friedemann Immobilien e.K.Maklerbüro
Detmolder Str. 44, 32545 Bad Oeynhausen
Partnerschaft

Team Friedemann Immobilien MietanfragenDein Kontakt
Online-ID: 2gerd5c
Referenznummer: K3198


Friedemann Immobilien e.K.
Wie zufrieden bist du mit dieser Seite (nicht mit der Immobilie selbst)?

