

Philipp Zimmermann Immobilien GmbH & Co. KG
Herr Philipp Zimmermann
+49 ···
Nr. anzeigenPreise & Kosten
Provision für Käufer
provisionsfrei
Lage
Am Bodensee in Gaienhofen.
Um den Reiz dieses Ortes zu beschreiben, bedarf es
nur weniger Worte. Die Bodenseeregion bietet ein
ganz eigenes Lebensgefühl - entschleunigend und
inspirierend zu gleich. Man spürt schnell die Magie
der Höri und die Ruhe und Kraft des Sees. Hier ist es
wert zu bleiben und zu leben...
Die Wohnung
Wohnungslage
1. Geschoss
Bezug
Fertigstellung ca. 4. Quartal 2026
Wohnanlage
Energie & Heizung
Warum sehe ich diese Anzeige? – Du siehst diese Anzeige basierend auf Ihrer Navigation auf unserer Website und den Suchkriterien, die du verwendet hast.
Energieausweistyp
Bedarfsausweis
Gebäudetyp
Wohngebäude
Baujahr laut Energieausweis
2025
Effizienzklasse
A+
Endenergiebedarf
15,00 kWh/(m²·a)
Weitere Energiedaten
Heizungsart
Fußbodenheizung, Luft-/Wasser-Wärmepumpe
Details
Objektbeschreibung
Das historische Gebäude befindet sich im Zentrum von Gaienhofen. Mit seiner charakteristischen Architektur prägt es das Ortsbild.
Hier entsteht auf dem angrenzenden Grundstück ein
Neubau mit 8 hochwertigen Eigentumswohnungen in
zeitgemäßem Gewand. Das Projekt ist im Ensemble
mit dem Bestandsgebäude...
Ausstattung
Die Wohnungen werden mit sehr ansprechender Ausstattung gebaut, hier ein kleiner Auszug:
- Als Standard sind Eichenfußböden als Industrieparkett geplant. Sollten Sie andere Vorstellungen haben, können Sie aus einem
umfangreichen Programm wählen.
- Im Sanitärbereich sind sorgfältig ausgewählte...
Preisinformation
1 Tiefgaragenstellplatz
Weitere Informationen
Sonstiges
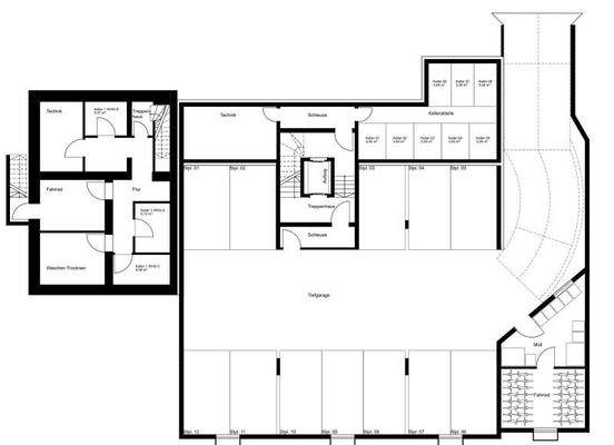
Diese 3-Zimmerwohnung im 1. Obergeschoss verfügt über eine Wohnfläche von ca. 86,09 m².
Die genaue Raumaufteilung entnehmen Sie bitte beigefügtem Grundrissplan.
Der Endenergiebedarf des Gebäudes (Neubau) beträgt 15 kWh/(m² a) - Gebäudeeffizienzklasse A+.
Kaufpreis Tiefgaragen-Stellplatz EUR...
Anbieter der Immobilie
Philipp Zimmermann Immobilien GmbH & Co. KG
Leinerstraße 20, 78462 Konstanz

Online-ID: 2gh875d
Referenznummer: E-275-5
Finde Angebote wie dieses
Hier geht es zu unserem Impressum, den Allgemeinen Geschäftsbedingungen, den Hinweisen zum Datenschutz und nutzungsbasierter Online-Werbung.