

IC IMMOCONSULT e.K.
Herr Ron Kaufmann
034 ···
Nr. anzeigenPreise & Kosten
Provision für Mieter
provisionsfrei
Warum sehe ich diese Anzeige? – Du siehst diese Anzeige basierend auf Ihrer Navigation auf unserer Website und den Suchkriterien, die du verwendet hast.
Lage
Die Immobilie befindet sich in einem Gewerbegebiet in Hartmannsdorf-Knautnaundorf und ist ein Stadtteil im Stadtbezirk Südwest von Leipzig.
Hartmannsdorf-Knautnaundorf liegt im äußersten Südwesten des Leipziger Stadtgebiets, etwa 10 Km vom Stadtkern entfernt.
Die "Erikenbrücke", eine Fuß- und Radwegbrücke...
Die Industriefläche
Kategorie
Produktionshalle
Bezug
sofort
Energie & Heizung
Warum sehe ich diese Anzeige? – Du siehst diese Anzeige basierend auf Ihrer Navigation auf unserer Website und den Suchkriterien, die du verwendet hast.
Weitere Energiedaten
Energieträger
Gas
Heizungsart
Zentralheizung
Details
Objektbeschreibung
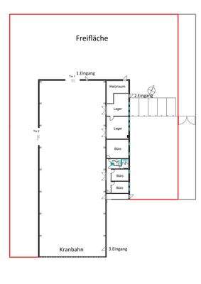
Bei der zur Miete stehenden Immobilie handelt es sich um eine geräumige Industriehalle mit 2 großen Rolltoren, Warmlager, Büroräumen und Freifläche.
Die Freifläche bietet bis 1.500 m² Fläche (eingezeichnet im Lageplan). Benötigte Fläche können für einen Mietpreis von 1€/m² angemietet werden.
Die Halle selbst...
Ausstattung
- 1 pfeilerfreie Industriehalle
- 3 Büroräume
- 2 Warmlagerräume
- bis ca. 1.500 m² Freifläche (à 1,00 €/m²) anmietbar für z.B. Stellplätze
- 2 gr. neue elektr. Rolltore (07/2025)
- Starkstrom liegt an
- Erdgas liegt an
Industriehalle:
- ca. 867 m²
- pfeilerfrei
- ca. 9 m hoch
-...
Weitere Informationen
Sonstiges
Die von uns gemachten Angaben haben wir nach bestem Wissen und Gewissen nach Informationen des Vermieters/Verkäufers und den uns übergebenen Informationen zusammengestellt. Eine Gewähr für diese Angaben können wir nicht übernehmen. Wichtige Zahlen und Informationen sind am Objekt zu überprüfen...
Anbieter der Immobilie
IC IMMOCONSULT e.K.
Hillerstraße 3, 04109 Leipzig

Online-ID: 2gj3z5u
Referenznummer: 302g70#yWqe1d
Finde Angebote wie dieses
Hier geht es zu unserem Impressum, den Allgemeinen Geschäftsbedingungen, den Hinweisen zum Datenschutz und nutzungsbasierter Online-Werbung.