
RUHR REAL GmbH
Herr Jonas Bruckmann
+49 ···
Nr. anzeigenPreise & Kosten
Provision für Mieter
provisionsfrei
Warum sehe ich diese Anzeige? – Du siehst diese Anzeige basierend auf Ihrer Navigation auf unserer Website und den Suchkriterien, die du verwendet hast.
Lage
Der Innenhafen, ein früherer Industriehafen, gilt als Musterbeispiel für den Strukturwandel im Ruhrgebiet. Der heutige Innenhafen zeichnet sich durch moderne Büroneubauten entlang der Schifferstraße sowie umgenutzte ehemalige Speichergebäude entlang des Philosophenweges aus. Die Objekte bieten fast ausnahmslos einen direkten...
Büro-/Praxisfläche
Kategorie
Bürofläche
Bezug
sofort
Details
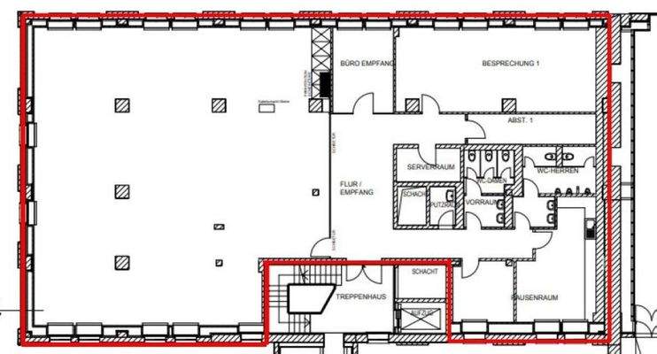
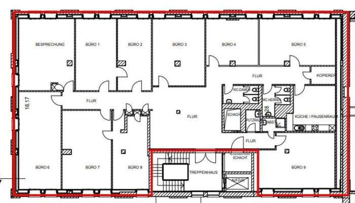
Objektbeschreibung
Das historische Kesselhaus sowie das anliegende Speichergebäude wurden durch eine umfassende Sanierung zu einer hochmodernen und äußerst attraktiven Büroimmobilie mit Charme umgebaut. Die sofort bezugsfertigen Büroflächen verfügen über attraktive Glaselemente und sind mit einem hochwertigen Teppichboden ausgestattet. Ein...
Ausstattung
. Bodenbelag: Teppichboden
. Verkabelung: CAT5
. Verkabelungsort: Bodentanks
. Beleuchtung: Rasterleuchten
. Sonnenschutz: innenliegend, manuell
. Teeküche: voll ausgestattet
. Kühlung: kontrollierte Be- und Entlüftung
. Heizung: Gaszentralheizung
Preisinformation
Nettokaltmiete: 12,90 EUR
Weitere Informationen
Sonstiges
Es gelten ausschließlich unsere AGB (www.ruhr-real.de/agb). Wir möchten Sie darauf hinweisen, dass die Angaben ausschließlich auf den uns vom Eigentümer übermittelten Unterlagen und Informationen basieren. Für Richtigkeit und Vollständigkeit übernehmen wir keine Gewähr. Zwischenvermietung...
Anbieter der Immobilie

RUHR REAL GmbH
Holsterhauser Platz 2, 45147 Essen
Online-ID: 2gjh953
Referenznummer: 1112/E1
Finde Angebote wie dieses
Hier geht es zu unserem Impressum, den Allgemeinen Geschäftsbedingungen, den Hinweisen zum Datenschutz und nutzungsbasierter Online-Werbung.