

KDH Immobilien GmbH
Frau Simone Unger-Ullmann
+43 ···
Nr. anzeigenPreise & Kosten
Provision für Käufer
Bitte beachte, das Angebot kann bei Vertragsabschluss die Zahlung einer Provision beinhalten. Weitere Informationen erhältst Du vom Anbieter.
Lage
NÄHE HIRSCHSTÄTTNER BADETEICH
Die Wohnung
Bezug
sofort
Wohnanlage
Energie & Heizung
Warum sehe ich diese Anzeige? – Du siehst diese Anzeige basierend auf Ihrer Navigation auf unserer Website und den Suchkriterien, die du verwendet hast.
Heizwärmebedarf (HWB)
27,00 kWh/(m²·a)
Gesamtenergieeffizienz (fGEE)
0,74
Details
Objektbeschreibung
EISKALT REDUZIERT - 6,5% WENIGER ZAHLEN, WARM WOHNEN!
ZUSÄTZLICH GIBT ES PRO ZIMMER EINEN € 1000,- GUTSCHEIN VON XXXLUTZ!
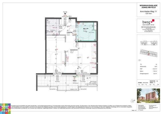
WOHNEN IM JONAS AM FELD - Bauplatz J, Anni-Haider-Weg 9+11; Maria-Emhart-Weg 14, 1220 Wien
In sehr guter Lage, wenige Minuten zu Fuß vom Hirschstettner...
Weitere Informationen
Stichworte
Anzahl Balkone: 1, Balkon-Terrassen-Fläche: 11,90 m², Bundesland: Wien, Wohnungsnr.: 52
Dokumente
Anbieter der Immobilie
KDH Immobilien GmbH
Voitmann 43, 8272 BAD WALTERSDORF

Online-ID: 2gk425t
Referenznummer: OBGC2024110713221674672c297ce4c
Finde Angebote wie dieses
Günstige Immobilienfinanzierung einfach online berechnen
Persönliches Angebot berechnenWarum sehe ich diese Werbung? – Du siehst diese Werbung basierend auf Deiner Navigation auf unserer Website und der von Dir verwendeten Suchkriterien.
Diese Werbung wird bezahlt von durchblicker
Werbung melden
Hier geht es zu unserem Impressum, den Allgemeinen Geschäftsbedingungen, den Hinweisen zum Datenschutz und nutzungsbasierter Online-Werbung.