
Jones Lang LaSalle SE - Industrial Agency München
Frau Lia Erndle
+49 ···
Nr. anzeigenPreise & Kosten
Provision für Mieter
provisionspflichtig für den Mieter/Käufer
Warum sehe ich diese Anzeige? – Du siehst diese Anzeige basierend auf Ihrer Navigation auf unserer Website und den Suchkriterien, die du verwendet hast.
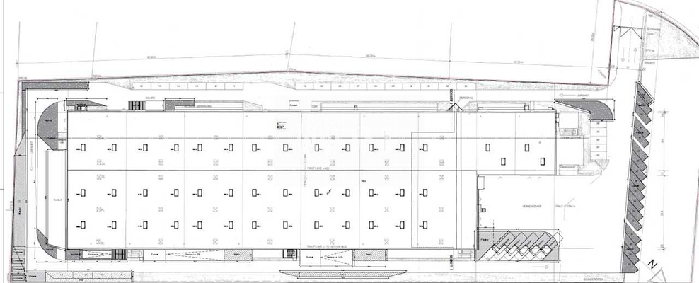
Die Industriefläche
Kategorie
Lagerhalle
Baujahr
1984
Bezug
Sofort
Details
Objektbeschreibung
Das Gebäude befindet sich im Gewerbegebiet Hohenbrunn und ist komplett umfahrbar. Die Andienung der Halle erfolgt über 4 hydraulische Anfahrrampen, 3 Auffahrrampen und 2 Rampentore. Eine Sprinkleranlage ist vorhanden.
Weitere Informationen
Stichworte
Lagerfläche: 11.500,00 m², Gesamtfläche: 12.505,00 m², modernisiert: 2020
Anbieter der Immobilie
Jones Lang LaSalle SE - Industrial Agency München
Ludwigstraße 8, 80539 München
Online-ID: 2glcv58
Referenznummer: 7@of86237@14@0
Finde Angebote wie dieses
Hier geht es zu unserem Impressum, den Allgemeinen Geschäftsbedingungen, den Hinweisen zum Datenschutz und nutzungsbasierter Online-Werbung.