
TF Immobilien GmbH
Herr Sven Rühr
036 ···
Nr. anzeigenPreise & Kosten
Kaution
1.245,00 EUR (3 Kaltmieten)
Provision für Mieter
1.245,00 EUR zzgl. 19% MwSt.
Warum sehe ich diese Anzeige? – Du siehst diese Anzeige basierend auf Ihrer Navigation auf unserer Website und den Suchkriterien, die du verwendet hast.
Lage
Das Rudolstädter Anker-Medicum befindet sich in einer zentralen und sehr gut erreichbaren Lage, die sowohl von Anwohnern als auch von Besuchern frequentiert wird. Die unmittelbare Umgebung bietet eine hervorragende Infrastruktur mit zahlreichen Einkaufsmöglichkeiten, Restaurants und Dienstleistern. Zudem profitieren Sie von...
Die Industriefläche
Baujahr
1995
Bezug
sofort
Derzeitige Nutzung
frei
Geschosse
3 Geschosse
Energie & Heizung
Warum sehe ich diese Anzeige? – Du siehst diese Anzeige basierend auf Ihrer Navigation auf unserer Website und den Suchkriterien, die du verwendet hast.
Energieausweis: für diesen Gebäudetyp nicht notwendig
Weitere Energiedaten
Energieträger
Gas
Heizungsart
Zentralheizung
Details
Objektbeschreibung
Objektbeschreibung
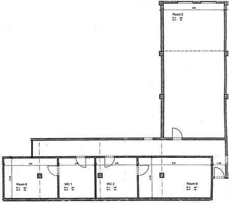
Wir freuen uns, Ihnen eine attraktive Gewerbeeinheit mit einer Hauptfläche von ca. 68,9 m² im renommierten Rudolstädter Anker-Medicum anzubieten. Diese Einheit eignet sich ideal für verschiedene Nutzungsmöglichkeiten, sei es als Büro, Praxis oder Verkaufsfläche.
Weiterhin gehört zu dieser Einheit...
Weitere Informationen
Besichtigungstermine
Bitte kontaktieren Sie uns bei Interesse über die Kontaktmöglichkeit in dieser Anzeige mit Ihrem vollständigen Namen, und Ihrer Telefonnummer, sowie Ihren Wünschen zu einem evtl. Besichtigungstermin.
Alle Angaben basieren ausschließlich auf Informationen unseres Auftraggebers ohne Gewähr für...
Anbieter der Immobilie
Online-ID: 2glcw5s
Finde Angebote wie dieses
Hier geht es zu unserem Impressum, den Allgemeinen Geschäftsbedingungen, den Hinweisen zum Datenschutz und nutzungsbasierter Online-Werbung.