
OTTO Immobilien
Frau Elisabeth Papsch & Frau Evelyn Steiner
004 ···
Nr. anzeigenPreise & Kosten
Provision für Käufer
3% des Kaufpreises zzgl. 20% USt.
Lage
Über 50 Heurige laden in der nahen Umgebung auf ein Gläschen "Wiener G'mischten Satz" aus den eigenen Weingärten ein.
Anbindung an das öffentliche Verkehrsnetz bieten die Buslinien 35A und 43B.
Mit dem Auto gelangt man in rund 25 Minuten in das Stadtzentrum.
Zur Erholung bieten sich die umliegenden...
Das Haus
Kategorie
Villa
Baujahr
2022
Bezug
Q4 2023
Energie & Heizung
Warum sehe ich diese Anzeige? – Du siehst diese Anzeige basierend auf Ihrer Navigation auf unserer Website und den Suchkriterien, die du verwendet hast.
Heizwärmebedarf (HWB)
45,10 kWh/(m²·a)
Weitere Energiedaten
Heizungsart
Fußbodenheizung, Luft-/Wasser-Wärmepumpe
Details
Objektbeschreibung
Eingebettet in die sanfte Hügellandschaft der Döblinger Weinberge wurden hier mit THE UNIQUE eine exklusive Kollektion aus 17 luxuriösen Villen - ausgestattet mit stilvoller Eleganz und erlesenem Geschmack - kreiert.
Am Südhang des Hackenbergs im Herzen Sieverings verführt jede der Villen mit einem privaten...
Ausstattung
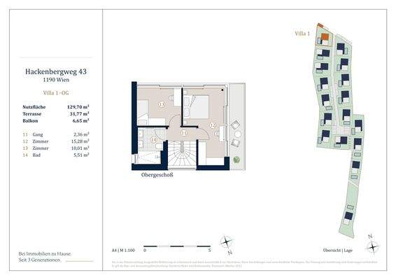
Die Raumaufteilung der Villa 1 entnehmen Sie bitte dem Grundriss.
- Raumhöhe Untergeschoss 2,70m, Erdgeschoss 2,39m, Obergeschoss 2,30m
- Hochwertige Parkettdielen
- Fenster mit 3-Scheiben-Isolierverglasung
- Fußbodenheizung und Klimaanlage
- Elektrischer Sonnenschutz
-...
Preisinformation
1 Carportplatz
Weitere Informationen
Sonstiges
Baustart: Februar 2022
geplante Fertigstellung: Ende 2023
Wir weisen darauf hin, dass unser Unternehmen mit der Vermarktung dieses und weiterer Projekte vom Auftraggeber beauftragt ist und wir daher verpflichtet sind, auf das dadurch gegebene "wirtschaftliche Naheverhältnis" hinzuweisen.
Die OTTO...
Anbieter der Immobilie
OTTO Immobilien
Riemergasse 8, 1010 WIEN
Online-ID: 2gm2j55
Referenznummer: IVW-22-04656/1
Finde Angebote wie dieses
Günstige Immobilienfinanzierung einfach online berechnen
Persönliches Angebot berechnenWarum sehe ich diese Werbung? – Du siehst diese Werbung basierend auf Deiner Navigation auf unserer Website und der von Dir verwendeten Suchkriterien.
Diese Werbung wird bezahlt von durchblicker
Werbung melden
Hier geht es zu unserem Impressum, den Allgemeinen Geschäftsbedingungen, den Hinweisen zum Datenschutz und nutzungsbasierter Online-Werbung.