
Balk Gruppe
Firma Balk Gruppe
087 ···
Nr. anzeigenPreise & Kosten
Provision für Mieter
provisionsfrei
Warum sehe ich diese Anzeige? – Du siehst diese Anzeige basierend auf Ihrer Navigation auf unserer Website und den Suchkriterien, die du verwendet hast.
Lage
Die Wohn- und Geschäftsanlage in der Daimlerstraße 8–8f erfreut sich
großer Beliebtheit und zeichnet sich besonders durch die harmonische
Mischung von Wohnungen und Geschäften aus.
Das Wohn- und Geschäftshaus liegt sehr günstig. Die Geschäfte des
täglichen Bedarfs sind zu Fuß in kürzester Zeit zu erreichen...
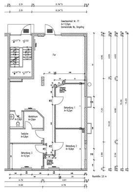
Die Ladenfläche
Baujahr
1996
Bezug
nach Absprache
Energie & Heizung
Warum sehe ich diese Anzeige? – Du siehst diese Anzeige basierend auf Ihrer Navigation auf unserer Website und den Suchkriterien, die du verwendet hast.
Energieausweistyp
Verbrauchsausweis
Gebäudetyp
Wohngebäude
Wesentliche Energieträger
H-Gas, Schweres Erdgas
Gültigkeit
22.07.2019 bis 21.07.2029
Effizienzklasse
C
Endenergieverbrauch
90,00 kWh/(m²·a) - Warmwasser enthalten
Weitere Energiedaten
Energieträger
Gas
Heizungsart
Zentralheizung
Details
Objektbeschreibung
Die Gewerbeeinheit befindet sich im Erdgeschoss in einem modernen Wohn- und Geschäftshaus das 1996 fertig gestellt wurde.
Das Gebäude ist in Niedrigenergiebauweise gebaut, somit liegen die Heizkosten im unteren Kostenbereich.
Die Außenanlage konnte mit viel Grün gestaltet werden und wird von einem Hausmeisterdienst...
Ausstattung
Das gesamte Objekt und damit natürlich auch die zur Vermietung stehende Gewerbefläche zeichnet sich durch seine hohe Bauqualität aus.
Der Grundriss bietet vielfältige Nutzungsmöglichkeiten.
Räume zum Innenhof sowie zum Grünbereich.
Großzügige Fensterflächen - Hell und funktional geschnittene...
Weitere Informationen
Sonstiges
Wir freuen uns auf Ihre Kontaktanfrage!
Gerne per E-Mail an die info@balk-gruppe.de, vielen Dank!
Weitere Angebote finden sie auf unserer Homepage www.balkgruppe.de.
Stichworte
Serviceleistungen: Hausmeister
Sonstiges: frei werdend
Dokumente
Anbieter der Immobilie

Balk Gruppe
Fraunhoferstr. 2, 84137 Vilsbiburg
Online-ID: 2gmp85f
Referenznummer: GE 77
Finde Angebote wie dieses
Hier geht es zu unserem Impressum, den Allgemeinen Geschäftsbedingungen, den Hinweisen zum Datenschutz und nutzungsbasierter Online-Werbung.