
Jones Lang LaSalle SE - Office Leasing Rhein-Neckar
Herr Konstantinos Krikelis
+49 ···
Nr. anzeigenPreise & Kosten
Provision für Mieter
provisionspflichtig für den Mieter/Käufer
Warum sehe ich diese Anzeige? – Du siehst diese Anzeige basierend auf Ihrer Navigation auf unserer Website und den Suchkriterien, die du verwendet hast.
Lage
Die Käfertaler Straße erstreckt sich quer durch den Mannheimer Stadtteil Wohlgelegen und fungiert hierbei sich als wichtige Verbindung zwischen verschiedensten Wohn- und Gewerbegebieten. Entlang der Käfertaler Straße befinden sich wichtige Verkehrsknotenpunkte, wodurch sie eine hervorragende Anbindung an das...
Büro-/Praxisfläche
Kategorie
Bürofläche
Baujahr
1993
Bezug
Auf Anfrage
Energie & Heizung
Warum sehe ich diese Anzeige? – Du siehst diese Anzeige basierend auf Ihrer Navigation auf unserer Website und den Suchkriterien, die du verwendet hast.
Energieausweistyp
Bedarfsausweis
Gebäudetyp
Nicht-Wohngebäude
Gültigkeit
seit 30.09.2009
Endenergiebedarf
181,50 kWh/(m²·a)
Details
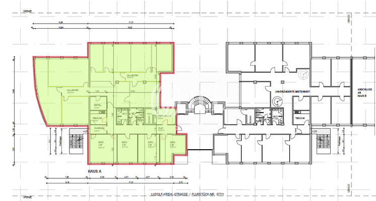
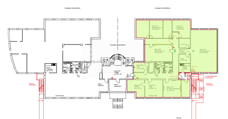
Objektbeschreibung
Bei dem Objekt handelt es sich um ein ansprechend gestaltetes Bürohaus. Das Ensemble setzt sich aus drei Baukörpern zusammen und bietet Büroflächen mit einer hellen Arbeitsatmosphäre. Die Mietflächen können nach individuellen Anforderungen des künftigen Mieters ausgebaut werden. Des Weiteren verfügt das Gebäude über eine...
Weitere Informationen
Stichworte
Gesamtfläche: 481,00 m²
Sonstiges: EDV-Verkabelung
Anbieter der Immobilie
Jones Lang LaSalle SE - Office Leasing Rhein-Neckar
L14, 11, 68161 Mannheim
Online-ID: 2gn2l5v
Referenznummer: 4@of167@14@0
Finde Angebote wie dieses
Hier geht es zu unserem Impressum, den Allgemeinen Geschäftsbedingungen, den Hinweisen zum Datenschutz und nutzungsbasierter Online-Werbung.