

Felder. Der Gewerbespezialist GmbH
Frau Kerstin Wüstefeld
+49 ···
Nr. anzeigenPreise & Kosten
Provision für Mieter
1,78 Netto -Monatsmiete(n) (inkl. MwSt)
Warum sehe ich diese Anzeige? – Du siehst diese Anzeige basierend auf Ihrer Navigation auf unserer Website und den Suchkriterien, die du verwendet hast.
Lage
Eingebettet in einem der schönsten Winkel des Alpenvorlandes, empfiehlt sich Rosenheim - als wirtschaftliches Zentrum für rund 350.000 Einwohner - seinen Besuchern mit optimalen Verkehrsanbindungen und einem hochwertigen Kultur- und Freizeitangebot zu allen Jahreszeiten.
In der Stadt Rosenheim leben ca. 60.000...
Büro-/Praxisfläche
Kategorie
Bürofläche
Baujahr
1968
Bezug
sofort verfügbar
Energie & Heizung
Warum sehe ich diese Anzeige? – Du siehst diese Anzeige basierend auf Ihrer Navigation auf unserer Website und den Suchkriterien, die du verwendet hast.
Wärme
Strom
Energieausweistyp
Verbrauchsausweis
Gebäudetyp
Nicht-Wohngebäude
Baujahr laut Energieausweis
1988
Endenergieverbrauch (Wärme)
88,00 kWh/(m²·a)
Endenergieverbrauch (Strom)
147,00 kWh/(m²·a)
Weitere Energiedaten
Energieträger
Fernwärme
Heizungsart
Zentralheizung
Details
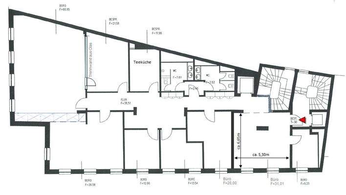
Objektbeschreibung
Es erwartet Sie eine attraktive Büro-/Praxisfläche im 2. OG eines sehr gepflegten Haus in bester Lage Rosenheims. Das Raumangebot und der großzügige Grundriss werden Sie begeistern. Die Nutzfläche beträgt ca. 280 m². Die Fläche befindet sich in einem sehr guten Zustand und kann sofort übernommen werden.
- sehr gute...
Weitere Informationen
Nutzung
Büro- oder Praxisnutzung
Zusatz/Über Uns
Sie möchten mehr Informationen zu diesem Objekt? Gern übersenden wir Ihnen unverbindlich unser aussagekräftiges Exposé. Ein Email oder Anruf genügt.
Die im Exposé angegebenen Daten beruhen auf Angaben des Eigentümers. Für diese Angaben übernehmen wir keine...
Anbieter der Immobilie

Online-ID: 2gn8u58
Referenznummer: A368
Finde Angebote wie dieses
Hier geht es zu unserem Impressum, den Allgemeinen Geschäftsbedingungen, den Hinweisen zum Datenschutz und nutzungsbasierter Online-Werbung.