TRISTAR Immobilien GmbH & Co KG

TRISTAR Immobilien

. NEU! . TOP-LAGE . ZIEGELMASSIVHÄUSER . KELLER . ERDGESCHOSS . OBERGESCHOSS . GARTEN . TERRASSE . PKW-STELLPLATZ .

€ 999.000
Kaufpreis
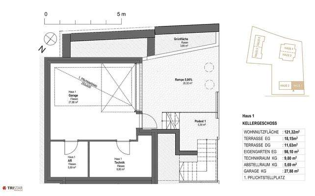
121,32 m²
Wohnfläche ca.
5
Zimmer
k.A.
Grundstücksfl.
Finanzierung berechnen mit durchblicker

Der Anbieter dieses Objekts hat gegenüber der AVIV Germany GmbH als Betreiber dieses Online-Marktplatzes erklärt, nicht als Unternehmer im Sinne des § 1 KSchG zu handeln. Die im Verbraucherschutzrecht der Union verankerten Verbraucherrechte (insbesondere Informationspflichten und Rücktritts- bzw. Widerrufsrechte) finden auf den Vertrag zwischen dem Anbieter des Objekts und Ihnen (dem Interessenten) keine Anwendung.

Gewerblicher Anbieter

Der Anbieter dieses Objekts hat gegenüber der AVIV Germany GmbH als Betreiber dieses Online-Marktplatzes erklärt, als Unternehmer im Sinne des § 1 KSchG zu handeln.

AdresseStraße nicht freigegeben
3400 Klosterneuburg 
Auf Karte ansehen

Preise & Kosten

Kaufpreis € 999.000

Provision für Käufer

3% des Kaufpreises zzgl. 20% USt.

Lage

Das Haus

Kategorie

Doppelhaushälfte

Baujahr

2024

Bezug

sofort

  • Zustand: Erstbezug, Neubau
  • Terrasse
  • 1 Stellplatz: Garage
  • Böden: Fliesenboden, Parkett
  • voll klimatisiert

Energie & Heizung

Weitere Energiedaten

Heizungsart

Fußbodenheizung, Luft-/Wasser-Wärmepumpe

Details

Objektbeschreibung

* PROJEKT:

Zum Verkauf gelangen 6 Doppelhaushälften, welche SCHLÜSSELFERTIG und in TOP Baumeisterqualität (100% Zigelmassiv!) hergestellt sind!

Die unverwechselbaren Doppelhäuser (Baujahr: 2024-2025) erfüllen alle technischen und konstruktiven Standards zeitgemäßen Bauens...

Mehr anzeigen

Preisinformation

1 Garagenstellplatz

Weitere Informationen

Stichworte
Garage vorhanden, Nutzfläche: 292,57 m², Anzahl Terrassen: 2, Balkon-Terrassen-Fläche: 30,00 m², Kellerfläche: 28,00 m², Bundesland: Niederösterreich, 4 Etagen, Wohnungsnr.: 1

Anbieter der Immobilie

Partner

TRISTAR Immobilien GmbH & Co KG

Am Hof 5/10, 1010 WIEN

user

TRISTAR Immobilien

Dein Ansprechpartner

Anbieter-Website Anbieter-Profil Anbieter-Impressum

Online-ID: 2gn965s

Referenznummer: OBGC2024072523320312443cfcd665b

Finde Angebote wie dieses

imageimageimage

Günstige Immobilienfinanzierung einfach online berechnen

Persönliches Angebot berechnen

Hier geht es zu unserem Impressum, den Allgemeinen Geschäftsbedingungen, den Hinweisen zum Datenschutz und nutzungsbasierter Online-Werbung.