

Peter Peters Immobilien GmbH &Co.KG
Herr Peter Peters
046 ···
Nr. anzeigenPreise & Kosten
Provision für Käufer
3,57 % inkl. MwSt. inkl. MwSt.
Lage
Das Grundstück befindet sich in ruhiger, landschaftlich reizvoller Lage des Friesendorfes Keitum. Die ganze Schönheit des Dorfes erschließt sich dem Besucher bei einem Spaziergang oder einer romantischen Kutschfahrt durch die malerischen Straßen Keitums, aber auch ein geruhsamer Gang am Keitumer Kliff oder durch die den Ort...
Die Immobilie
Zu diesem Angebot wurden vom Anbieter keine weiteren Daten hinterlegt. Für weitere Informationen bitte den Anbieter kontaktieren.
Nach Informationen fragenDetails
Objektbeschreibung
Auf dem ca. 2.035 m² großen Grundstück, in zurückgezogener Lage, nahe der Keitumer Salzwiesen kann ein reetgedecktes Einzelhaus unter Reet mit einer Garage realisiert werden.
Auf einer Grundfläche von ca. 185 m² kann das Haus nach eigenen Wünschen und Vorstellungen gebaut und umgesetzt werden.
Die Baugenehmigung...
Ausstattung
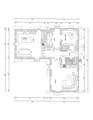
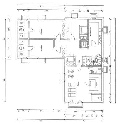
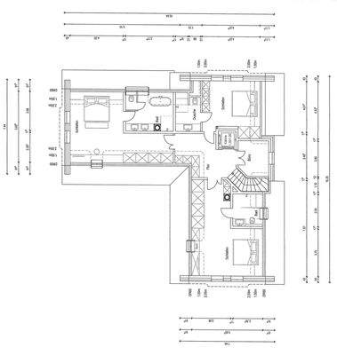
Die Aufteilung des Hauses kann wie folgt gestaltet werden:
Die großzügige Diele mit angrenzendem Gäste-WC, sep. Garderobe und einem Lift bietet bei jeder Ankunft ein herrliches Wohlgefühl. Über den langen Flur erreichen Sie die große Küche mit Kochinsel und Essbereich sowie einem Gaskamin und Terrassenaustritte auf zu...
Weitere Informationen
Stichworte
Wohnfläche: 395,00 m², Gesamtfläche: 395,00 m², Bundesland: Schleswig-Holstein
Anbieter der Immobilie

Online-ID: 2gny85x
Referenznummer: 1574
Finde Angebote wie dieses
Hier geht es zu unserem Impressum, den Allgemeinen Geschäftsbedingungen, den Hinweisen zum Datenschutz und nutzungsbasierter Online-Werbung.