

Manhart Immobilien
Herr Frank Manhart
061 ···
Nr. anzeigenPreise & Kosten
Provision für Käufer
2,975% des KP inkl. gesetzl. MwSt.
Die Provision ist verdient und fällig mit Beurkundung des notariellen Kaufvertrages. Der Immobilienmakler hat einen provisionspflichtigen Maklervertrag mit dem Verkäufer in gleicher Höhe abgeschlossen.
Lage
Taunusstein-Bleidenstadt verfügt zum einen über eine gute Infrastruktur bezüglich Einkaufsmöglichkeiten, Schulen, Kitas, Ärzten, Apotheken etc. und zum anderen über eine gute Verkehrsanbindung an den ÖPNV und schnelle Fahrzeiten nach Wiesbaden, Bad Schwalbach oder Idstein (A3).
Die zentrumsnahe Lage des Hauses...
Die Wohnung
Wohnungslage
Erdgeschoss
Derzeitige Nutzung
vermietet
Wohnanlage
Energie & Heizung
Warum sehe ich diese Anzeige? – Du siehst diese Anzeige basierend auf Ihrer Navigation auf unserer Website und den Suchkriterien, die du verwendet hast.
Energieausweistyp
Verbrauchsausweis
Gebäudetyp
Wohngebäude
Baujahr laut Energieausweis
1995
Wesentliche Energieträger
Gas
Gültigkeit
04.01.2018 bis 03.01.2028
Effizienzklasse
F
Endenergieverbrauch
169,00 kWh/(m²·a) - Warmwasser enthalten
Weitere Energiedaten
Energieträger
Gas
Heizungsart
offener Kamin, Zentralheizung
Details
Objektbeschreibung
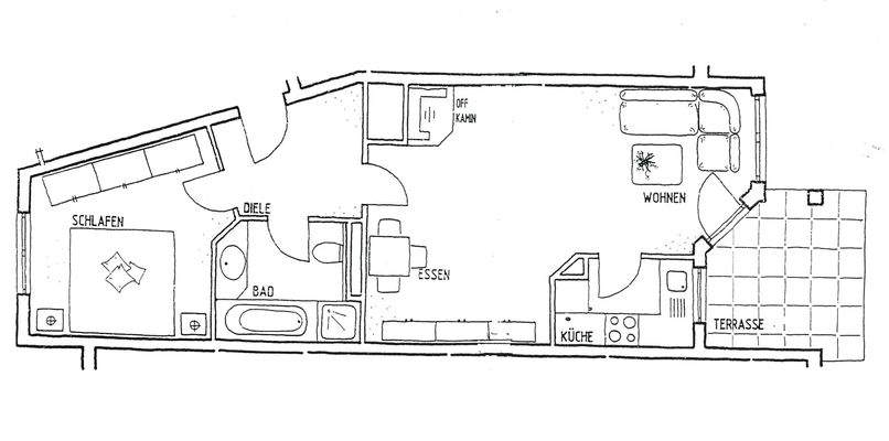
Bei dieser Wohnung handelt es sich um eine attraktive und gemütliche 2 Zimmer-Wohnung, die sich im Erdgeschoss eines sehr gepflegten Mehrparteienhauses in Taunusstein-Bleidenstadt befindet.
Das ansprechend geschnittene Wohnzimmer ist ca. 28m² groß und besitzt einen Kamin und einen gemütlichen Essbereich. Die großzügige...
Ausstattung
-Terrasse und Garten (mit Frischwasser- und Regenwasseranschluss)
-Kamin
-Einbauküche
-Badezimmer mit Wanne und Dusche
-TG-Stellplatz
Weitere Informationen
Sonstiges
Die Wohnung ist aktuell vermietet. Das Mietverhätnis besteht seit über 5 Jahren. Die Kaltmiete beträgt 550,-€ inklusive TG-Stellplatz. Die Nebenkostenvorauszahlung beträgt 200,-€. Damit bietet diese Wohnung eine gute Möglichkeit zur nachhaltigen Kapitalanlage.
+++Vergessen Sie nicht ihren Anspruch auf das...
Anbieter der Immobilie
Manhart Immobilien
Limburger Str. 12c, 65232 Taunusstein-Neuhof

Online-ID: 2gq7w56
Finde Angebote wie dieses
Hier geht es zu unserem Impressum, den Allgemeinen Geschäftsbedingungen, den Hinweisen zum Datenschutz und nutzungsbasierter Online-Werbung.