

Nageler Immobilien GmbH
004 ···
Nr. anzeigenPreise & Kosten
Provision für Käufer
provisionsfrei
Lage
Die Lage des Gesamtentwicklungskonzepts HiHarbach besticht durch zahlreiche Vorteile. Trotz der guten Anbindung an den Südring und die Völkermarkterstraße, sowie die Autobahnauffahrt Ost, die Sie in wenigen Autominuten erreichen, genießen Sie aufgrund der umliegenden 30er – Zone und den vielen Freiflächen mit großzügiger...
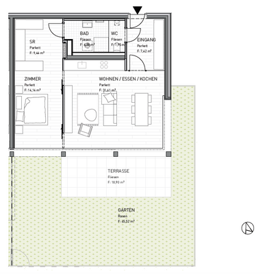
Die Wohnung
Wohnungslage
Erdgeschoss
Wohnanlage
Energie & Heizung
Warum sehe ich diese Anzeige? – Du siehst diese Anzeige basierend auf Ihrer Navigation auf unserer Website und den Suchkriterien, die du verwendet hast.
Heizwärmebedarf (HWB)
39,20 kWh/(m²·a)
Gesamtenergieeffizienz (fGEE)
0,75
Weitere Energiedaten
Energieträger
Fernwärme
Details
Objektbeschreibung
Diese knapp 70m2 Gartenwohnung ist der absolute Wohntraum. Durch den 7,42m2 großen Eingangsbereich gelangen Sie in das großzügige Wohn- und Esszimmer, mit einem direkten Zugang zur traumhaften Terrasse mit über 65m2 Garten. Durch die südliche Ausrichtung genießen Sie optimales Tageslicht im Wohnraum. Im geräumigen...
Weitere Informationen
Sonstiges
Der Baubeginn des Projektes ist für dieses Jahr geplant und die Fertigstellung wird somit für 2026 angesetzt (für den genauen Baubeginn und die Fertigstellung kann keine Garantie übernommen werden).
Bei den Projektabbildungen (Broschüren, Werbeanzeigen, etc.) handelt es sich lediglich um symbolische...
Anbieter der Immobilie
Online-ID: 2gr3v5x
Finde Angebote wie dieses
Günstige Immobilienfinanzierung einfach online berechnen
Persönliches Angebot berechnenWarum sehe ich diese Werbung? – Du siehst diese Werbung basierend auf Deiner Navigation auf unserer Website und der von Dir verwendeten Suchkriterien.
Diese Werbung wird bezahlt von durchblicker
Werbung melden
Hier geht es zu unserem Impressum, den Allgemeinen Geschäftsbedingungen, den Hinweisen zum Datenschutz und nutzungsbasierter Online-Werbung.