
Living Blue Mallorca
971 ···
Nr. anzeigenPreise & Kosten
Provision für Käufer
Bitte beachte, das Angebot kann bei Vertragsabschluss die Zahlung einer Provision beinhalten. Weitere Informationen erhältst Du vom Anbieter.
Das Haus
Baujahr
0
Energie & Heizung
Warum sehe ich diese Anzeige? – Du siehst diese Anzeige basierend auf Ihrer Navigation auf unserer Website und den Suchkriterien, die du verwendet hast.
Weitere Energiedaten
Heizungsart
Fußbodenheizung, Zentralheizung
Details
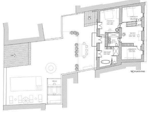
Objektbeschreibung
Diese historische Immobilie, ein wahres Juwel und eines der ältesten Häuser der Gegend, beeindruckt mit einer reichen Geschichte, die bis ins Jahr 1800 zurückreicht. Die denkmalgeschützte Fassade unterstreicht ihre architektonische Bedeutung und verleiht der Residenz einen einzigartigen Charme. In einer ruhigen Straße von...
Weitere Informationen
Stichworte
Anzahl der Schlafzimmer: 3, Anzahl der Badezimmer: 4, Bundesland: Mallorca
Anbieter der Immobilie
Online-ID: 2gr7x53
Referenznummer: 5592
Finde Angebote wie dieses
Hier geht es zu unserem Impressum, den Allgemeinen Geschäftsbedingungen, den Hinweisen zum Datenschutz und nutzungsbasierter Online-Werbung.