
Home Immobilien GmbH
Frau Karin Prast
003 ···
Nr. anzeigenPreise & Kosten
Provision für Käufer
3%
Büro-/Praxisfläche
Kategorie
Bürofläche
Baujahr
1980
Bezug
01.12.2027
Energie & Heizung
Warum sehe ich diese Anzeige? – Du siehst diese Anzeige basierend auf Ihrer Navigation auf unserer Website und den Suchkriterien, die du verwendet hast.
Weitere Energiedaten
Energieträger
Fernwärme
Details
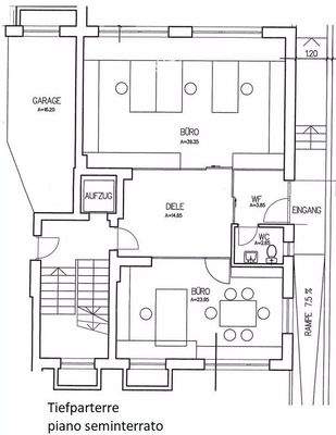
Objektbeschreibung
Rf.nr.: J075
Verkauft wird dieses Büro in zentraler Lage von Bruneck. Die Immobilie liegt im Tiefparterre und ist bis Dezember 2027 vermietet. Sie besteht aus Eingang, 2 Büroräumen, Bad, Keller und Garage. Das Büro wurde vor kurzem komplett saniert.
Handelsfläche: 103,00 m²
Nettofläche: 84,45 m²
Keller: 7,10...
Weitere Informationen
Stichworte
Garage vorhanden, Wohnfläche: 104,00 m², Nutzfläche: 104,00 m², Gesamtfläche: 104,00 m², Anzahl der Badezimmer: 1, 1 Etagen
Anbieter der Immobilie
Online-ID: 2gt245b
Referenznummer: J075
Finde Angebote wie dieses
Hier geht es zu unserem Impressum, den Allgemeinen Geschäftsbedingungen, den Hinweisen zum Datenschutz und nutzungsbasierter Online-Werbung.