Version: 8.24.0Navigation ĂĽberspringen
Mietkosten auf Anfrage
20,5 Zimmer  â€˘  614 m² BĂĽrofläche
Immowelt logo

BĂĽro zur Miete
Mietkosten auf Anfrage
20,5 Zimmer  â€˘  614 m² BĂĽrofläche

Hochwertige Büroflächen im 1.OG direkt an der Autobahnabfahrt Vorchdorf!

Modernes BĂĽro in Vorchdorf zu Vermieten

Die Immobilie befindet sich direkt am Kreisverkehr bei der Autobahnabfahrt Vorchdorf und bietet daher eine optimale Verkehrsanbindung und Sichtbarkeit.
Die großzügige Bürofläche umfasst insgesamt 614m² im 1. OG eines modernen Gebäudes in Vorchdorf.

Eigenschaften:

* Baujahr: 2008, mit einem Zubau auf der Gebäuderückseite im Jahr 2013
* Sehr niedrige Betriebskosten
* Beheizung mittels Wärmepumpe, klimatisiert
* Barrierefrei mit Lift

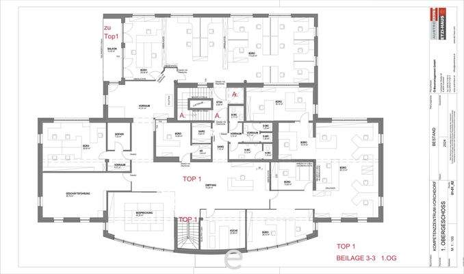
Raumaufteilung 1. Obergeschoss (200m² + 400m²):

* neun BĂĽros
* ein Besprechungsräume
* WCs
* Abstellraum
* KĂĽche
* Balkon mit 13,33m²

Es ist auch möglich nur einen Teilbereich zu mieten.

Im Keller gibt es die Möglichkeit weitere Räume mit Laderampe anzumieten.

Die Miete beträgt € 12,50 /m² zzgl. Ust.
Die Betriebskosten betragen € 2,50 /m² zuzĂĽglich Ust (inkl. Heizkosten!)

FĂĽr weitere Informationen und Besichtigungen kontaktieren Sie bitte Irina Scharinger unter der Telefonnummer 0676 6777722.
Bei Internetanfragen ist die Angabe von vollständigem Namen, Adresse und Telefonnummer erforderlich (Nachweispflicht gegenüber dem Verkäufer).

Wir freuen uns darauf, Ihnen dieses moderne Büro näher vorzustellen!

 

 

 

 

Noch nichts gefunden? Wir informieren Sie ĂĽber geeignete Immobilienangebote noch vor allen anderen.
Legen Sie jetzt Ihren individuellen Suchagenten unter folgendem Link an. Wir schicken Ihnen passende Immobilien exklusiv vorab zu.
Suchagent anlegen [https://eurea-real-estates.service.immo/registrieren/de] - https://eurea-real-estates.service.immo/registrieren/de

Wir weisen darauf hin, dass zwischen dem Vermittler und dem zu vermittelnden Dritten ein familiäres oder wirtschaftliches Naheverhältnis besteht.

Der Vermittler ist als Doppelmakler tätig.

Infrastruktur / Entfernungen

Gesundheit
Arzt <1.000m
Apotheke <500m
Klinik <8.000m

Kinder & Schulen
Schule <1.000m
Kindergarten <1.000m

Nahversorgung
Supermarkt <500m
Bäckerei <1.000m
Einkaufszentrum <9.500m

Sonstige
Bank <1.000m
Geldautomat <1.000m
Post <1.500m
Polizei <8.000m

Verkehr
Bus <500m
Bahnhof <500m
Autobahnanschluss <500m
Flughafen <7.500m

Angaben Entfernung Luftlinie / Quelle: OpenStreetMap

Merkmale

  • Bezug: sofort
  • Gäste-WC
  • Balkon
  • Barrierefrei

Grundrisse

Grundrisse
1 / 3

Realisiere Dein Projekt

Bausubstanz und Energie

Der Anbieter hat keine Informationen zum Energieverbrauch bereit gestellt.
  • Baujahr2008
  • Zustand der ImmobilieNeubau, Gepflegt
Immowelt logo

Mietkosten

Miete auf Anfrage
Provision fĂĽr Mieter
Bitte beachte, das Angebot kann bei Vertragsabschluss die Zahlung einer Provision beinhalten. Weitere Informationen erhältst Du vom Anbieter.
Kaution
keine Angabe

Lage

address-icon
Vorchdorf (4655)
Die Immobilie befindet sich direkt am Kreisverkehr bei der Autobahnabfahrt Vorchdorf und bietet daher eine optimale Verkehrsanbindung und Sichtbarkeit.
Vorchdorf ist eine Gemeinde im Bezirk Gmunden in Oberösterreich und liegt zwischen Linz und Salzburg. Die Immobilie liegt in zentraler Lage in der Nähe verschiedener Einrichtungen wie Arztpraxen, Apotheken, Schulen, Kindergärten, Supermärkten, Bäckereien, Banken und Geldautomaten. Auch öffentliche Verkehrsmittel wie Busse und der Bahnhof sind in der Nähe.

Weitere Informationen

Stichworte Stellplatz vorhanden, Lagerfläche: 32,90 m², Nutzfläche: 614,00 m², Anzahl der separaten WCs: 10, Anzahl Balkone: 1, Balkon-Terrassen-Fläche: 13,33 m², Kellerfläche: 248,00 m², Bundesland: Oberösterreich, 2 Etagen

Weitere Services

Lust auf eine Besichtigung?
Eine Frage zur Immobilie?
Nachricht hinzufĂĽgen
Mit der Nutzung der oben angegebenen Telefonnummer oder durch Klicken auf „Kontaktieren“ akzeptierst Du die Allgemeinen Nutzungsbedingungen, denen Du jederzeit widersprechen kannst. Weitere Informationen zum Datenschutz

Ăśber den Anbieter

Hans-Sachs-StraĂźe 1a, 4600 WELS
partner badge
Partnerschaft
Herr Stefan SchmiedsederDein Kontakt
Online-ID: 2gt835s
Referenznummer: OBGC202411121007504805253017c61
eurea Real Estates GmbH
Nachricht hinzufĂĽgen
Mit der Nutzung der oben angegebenen Telefonnummer oder durch Klicken auf „Kontaktieren“ akzeptierst Du die Allgemeinen Nutzungsbedingungen, denen Du jederzeit widersprechen kannst. Weitere Informationen zum Datenschutz
Wie zufrieden bist du mit dieser Seite (nicht mit der Immobilie selbst)?