
Corallo Immobilien
Herr Pablo Corallo
004 ···
Nr. anzeigenPreise & Kosten
Provision für Käufer
5,59 % inkl. MwSt.
Lage
Hanau - Ein aufstrebender Schwellenmarkt in Deutschland
Früher war Hanau Standort einer der größten US-Militäranlagen Europas. Die amerikanischen Soldaten brachten nicht nur viel Geld in die Stadt, sondern sorgten auch für eine wirtschaftliche Blütezeit. Mit dem Abzug der US-Truppen stand Hanau jedoch vor erheblichen...
Büro-/Praxisfläche
Kategorie
Bürofläche
Baujahr
1995
Bezug
Sofort
Derzeitige Nutzung
vermietet
Details
Objektbeschreibung
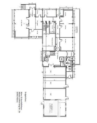
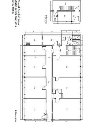
Zum Verkauf steht ein gepflegtes Büro- und Lagerensemble in verkehrsgünstiger Lage von Hanau, bestehend aus drei Gebäuden mit einer vermieteten Gesamtfläche von ca. 5.602,70 m².
Die Objekte, errichtet in den Jahren 1982, 1992 und 1995, präsentieren sich in einem sehr guten Zustand und sind vollständig vermietet. Das...
Ausstattung
*****Haben Sie bitte Verständnis dafür, dass vor einer Besichtigung oder Zusendung weiterer Unterlagen, die Vorlage eines Kapitalnachweises oder einer Finanzierungsbestätigung Ihrer Bank notwendig ist*****
- Personenaufzug
- Öl-Heizung
- 100 Parkflächen
- Mieteinnahmen p.a. (IST): 501.000 €
- Renommierten...
Weitere Informationen
Sonstiges
Courtagepassus
Der Makler-Vertrag mit uns und/oder unserem Beauftragten kommt durch schriftliche Vereinbarung oder durch die Inanspruchnahme unserer Maklertätigkeit auf der Basis des Objekt-Exposés und seiner Bedingungen zustande. Die Käufercourtage in Höhe von 5,95 % auf den Kaufpreis einschließlich...
Dokumente
Anbieter der Immobilie
Corallo Immobilien
Lerchenweg 23 A, 47589 Uedem
Online-ID: 2gt8b53
Referenznummer: 1269
Finde Angebote wie dieses
Hier geht es zu unserem Impressum, den Allgemeinen Geschäftsbedingungen, den Hinweisen zum Datenschutz und nutzungsbasierter Online-Werbung.