
Engel & Völkers Gewerbe Berlin GmbH & Co. KG
Team Industrie & Logistik
+49 ···
Nr. anzeigenPreise & Kosten
Provision für Käufer
Provisionspflichtig für den Käufer!
Lage
Das Objekt befindet sich in Reinickendorf.
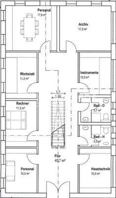
Büro-/Praxisfläche
Baujahr
2011
Energie & Heizung
Warum sehe ich diese Anzeige? – Du siehst diese Anzeige basierend auf Ihrer Navigation auf unserer Website und den Suchkriterien, die du verwendet hast.
Energieausweistyp
Bedarfsausweis
Gebäudetyp
Wohngebäude
Baujahr laut Energieausweis
2011
Wesentliche Energieträger
Strom
Gültigkeit
seit 08.06.2023
Effizienzklasse
A+
Endenergiebedarf
35,00 kWh/(m²·a)
Details
Objektbeschreibung
Das viergeschossige Objekt wurde 2011 erbaut und diente seither einem Vermessungsbüro als Firmenzentrale. Da das Objekt fast mittig auf dem Grundstück errichtet wurde, ermöglicht die Bauweise dass das Objekt über Stellplätze in der Front sowie über einen kleinen Rückzugsort auf der Gebäuderückseite verfügt. Der Haupteingang...
Anbieter der Immobilie

Engel & Völkers Gewerbe Berlin GmbH & Co. KG
Online-ID: 2gtxm5y
Referenznummer: O111586
Finde Angebote wie dieses
Hier geht es zu unserem Impressum, den Allgemeinen Geschäftsbedingungen, den Hinweisen zum Datenschutz und nutzungsbasierter Online-Werbung.