

ANGERMANN Real Estate Advisory AG
Herr Ron Klotsch
+49 ···
Nr. anzeigenPreise & Kosten
Provision für Mieter
provisionsfrei
Warum sehe ich diese Anzeige? – Du siehst diese Anzeige basierend auf Ihrer Navigation auf unserer Website und den Suchkriterien, die du verwendet hast.
Lage
Das Objekt befindet sich im Stadtteil Heddernheim. Heddernheim liegt im Nordwesten Frankfurts und ist durch die U-Bahn sowie diverse Buslinien mit der Frankfurter Innenstadt verbunden. Die Autobahnanschlüsse der A661 und A66 sind in wenigen Fahrminuten erreichbar.
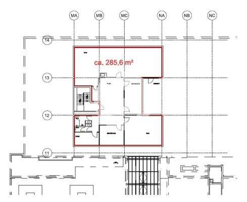
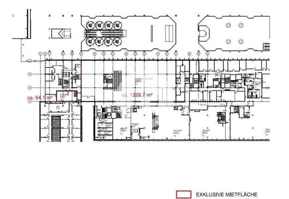
Büro-/Praxisfläche
Kategorie
Bürogebäude
Baujahr
1968
Geschoss
Erdgeschoss
Details
Objektbeschreibung
Zentral gelegen zwischen Heddernheim, Eschersheim, Praunheim und Niederursel, bietet das Objekt eine ideale Erreichbarkeit durch seine Anbindung an zwei U-Bahnlinien und 5 Buslinien. Ausreichend PKW-Stellplätze sind ebenfalls verfügbar. Zahlreiche Einkaufsmöglichkeiten sowie ein großes gastronomisches Angebot liegen in...
Ausstattung
- außenliegender Sonnenschutz
- EDV-Verkabelung vorhanden
- Fenster öffenbar
- Hohlraum-/Doppelboden
- PKW-Stellplätze
- Restaurant im Objekt
Weitere Informationen
Stichworte
Sonstiges: EDV-Verkabelung
Anbieter der Immobilie
ANGERMANN Real Estate Advisory AG
Guiollettstraße 48, 60325 Frankfurt

Online-ID: 2gu4d55
Referenznummer: 7597@13@0@43663
Finde Angebote wie dieses
Hier geht es zu unserem Impressum, den Allgemeinen Geschäftsbedingungen, den Hinweisen zum Datenschutz und nutzungsbasierter Online-Werbung.