

ScanHaus Marlow
Herr Birger Rohde
016 ···
Nr. anzeigenPreise & Kosten
Provision für Käufer
provisionsfrei
Lage
Über Uns
Was ScanHaus besonders macht !
ScanHaus Marlow ist einer der führenden Anbieter von modernen und umweltfreundlichen Fertighäusern und baut im Jahr 650 bis 700 Häuser. Wir bieten Ihnen mehr als 70 attraktive Fertighaus-Haustypen in modernster Holzrahmenbauweise/Holzständerbauweise.
In einem unser über...
Das Haus
Baujahr
2025
Energie & Heizung
Warum sehe ich diese Anzeige? – Du siehst diese Anzeige basierend auf Ihrer Navigation auf unserer Website und den Suchkriterien, die du verwendet hast.
Weitere Energiedaten
Haustyp
Fertighaus, KfW 40
Energieträger
Elektro
Heizungsart
Fußbodenheizung, Luft-/Wasser-Wärmepumpe
Details
Objektbeschreibung
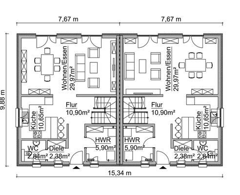
Diese Doppelhaushälfte ist im Baustil eines klassischen Einfamilienhauses auf zwei Ebene geplant. Jede Wohneinheit bietet mit 4 Zimmern Platz für eine vierköpfige Familie.
Was ist enthalten ?
Dieses Inserat ist komplett mit einer Doppelhaushälfte im technikfertigen Zustand berechnet.
- inkl...
Weitere Informationen
Kontakt
Kontakt
Ich berate Sie gerne um Ihren TRAUM vom Eigenheim nach Ihren Wünschen und Vorstellungen zu verwirklichen.
Zögern Sie nicht einen unverbindlichen Beratungstermin mit mir zu vereinbaren:
Herr Aaron Sykora - Hausberater
Tel.: 0176/41771291
Email: Sykora@scanhaus.de
Von der...
Anbieter der Immobilie
ScanHaus Marlow
An der Schule 86, 12623 Berlin-Mahlsdorf

Online-ID: 2gvsr57
Referenznummer: A.S 28.9.24 122DHH 5
Finde Angebote wie dieses
Hier geht es zu unserem Impressum, den Allgemeinen Geschäftsbedingungen, den Hinweisen zum Datenschutz und nutzungsbasierter Online-Werbung.