




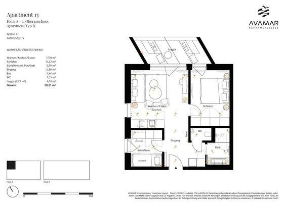
Wohnung zum Kauf420200 €8.319 €/m²3 Zimmer • 50,5 m²
420200 €
8.319 €/m²
3 Zimmer • 50,5 m²
Traumhaftes Urlaubsdomizil oder attraktive Kapitalanlage? Hier finden Sie beides!
Merkmale
- Bezug: nach Vereinbarung
- 51 Stellplätze: 51 Außen-Stellplätze
- Sauna
Grundrisse
Grundrisse
1 / 1
Realisiere Dein Projekt
Bausubstanz und Energie
Der Anbieter hat keine Informationen zum Energieverbrauch bereit gestellt.
- Baujahr2025
- Zustand der ImmobilieProjektiert
- HeizungsartZentralheizung: Fußbodenheizung
- EnergieträgerGas
Preisdetails
Kaufpreis
420200 €
8.319,14 €/m²
Preis pro Stellplatz
8000 €
Provision für Käufer
Bitte beachte, das Angebot kann bei Vertragsabschluss die Zahlung einer Provision beinhalten. Weitere Informationen erhältst Du vom Anbieter.
Weitere Preisinformationen
51 Stellplätze, Kaufpreis je: 8.000,00 EUR
Geschätzte Gesamtkosten
470.918 €1
Kaufpreis
420.200 €
Kaufnebenkosten
50.718 €
2Notarkosten (1,5%)
6.303 €
Grunderwerbsteuer (6,5%)
27.313 €
Provision für Käufer (3,57%)
15.001 €
Grundbucheintrag (0,5%)
2.101 €
1Der angezeigte Wert ist eine automatisch berechnete Schätzung von immowelt.
2Bei den Angaben handelt es sich um ortsübliche Werte. Individuelle Kosten können abweichen.
Lage

Wendisch Rietz (15864)
Der Anbieter hat die genaue Adresse nicht freigegeben
Weitere Informationen
Weitere Services
Lust auf eine Besichtigung?
Eine Frage zur Immobilie?
Online-ID: 2gw245m
Referenznummer: 2024-376

WFV GmbH
Wie zufrieden bist du mit dieser Seite (nicht mit der Immobilie selbst)?

