

Sirius Facilities GmbH
Herr Felix Meier
080 ···
Nr. anzeigenPreise & Kosten
Kaution
3 Bruttowarmmieten
Provision für Mieter
Die Vermietung erfolgt provisionsfrei!
Warum sehe ich diese Anzeige? – Du siehst diese Anzeige basierend auf Ihrer Navigation auf unserer Website und den Suchkriterien, die du verwendet hast.
Lage
Der Sirius Business Park Frickenhausen ist sowohl mit dem Auto als auch mit dem öffentlichen Nahverkehr schnell und einfach zu erreichen. Nach nur 10 Kilometern Fahrt erreichen Sie die Autobahnauffahrt Wendlingen an der A8. Vor Ort stehen Ihnen selbstverständlich ausreichend Parkmöglichkeiten für PKWs sowie Fahrradstellplätze...
Büro-/Praxisfläche
Kategorie
Bürofläche
Energie & Heizung
Warum sehe ich diese Anzeige? – Du siehst diese Anzeige basierend auf Ihrer Navigation auf unserer Website und den Suchkriterien, die du verwendet hast.
Weitere Energiedaten
Heizungsart
Zentralheizung
Details
Objektbeschreibung
Im Sirius Business Park Frickenhausen bieten wir Ihnen Büros sowie Lager- und Produktionsflächen, ideal für kleine und mittelständische Unternehmen. Die vielseitig nutzbaren Gewerbeflächen in Frickenhausen überzeugen mit günstigen, transparenten Preisen. Ob Sie ein Logistikzentrum errichten, Ihre Produktion verlegen oder die...
Ausstattung
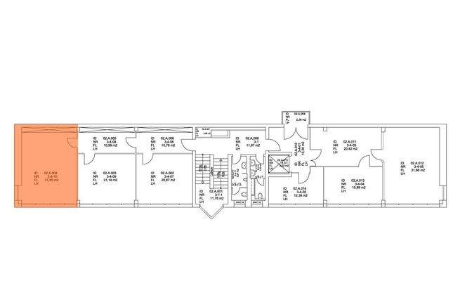
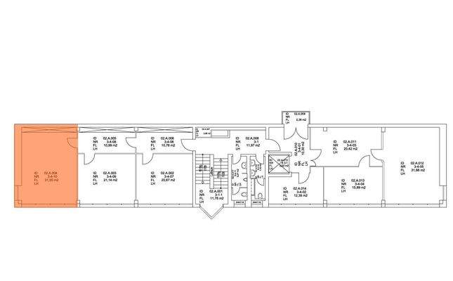
. Gesamtfläche: 57,81 m² im 2. Obergeschoss, renoviert
. Ausstattung: Lasten- und Personenaufzug, Rollladen, Teppichboden/Nadelfilz, Etagenheizung, Deckenbeleuchtung, Sonnenschutz
. Technik & Service: Datenverkabelung (CAT), Zentralheizung, Post- und Paketannahme
. Komfort: Teeküche, getrennte Damen- und...
Weitere Informationen
Sonstiges
*Das Angebot gilt für Neukundenverträge über Büros, die bis zum 16.03.26 unterzeichnet werden, und ist nicht kombinierbar mit anderen Rabatten und Aktionen. Die mietfreie Zeit wird ab 12 Monaten Laufzeit im 12. Monat, ab 24 Monaten im 12. und 24. Monat gewährt. Das Angebot bezieht sich auf die Nettokaltmiete...
Dokumente
Anbieter der Immobilie

Online-ID: 2gw4d5h
Referenznummer: A11832w
Finde Angebote wie dieses
Hier geht es zu unserem Impressum, den Allgemeinen Geschäftsbedingungen, den Hinweisen zum Datenschutz und nutzungsbasierter Online-Werbung.