

Reker Immobilien Doo
Herr Heiner Reker
+49 ···
Nr. anzeigenPreise & Kosten
Provision für Käufer
3,75 % inkl. MwSt. in Kroatien
Die Wohnung
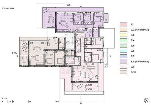
Kategorie
Penthouse
Wohnungslage
2. Geschoss
Wohnanlage
Energie & Heizung
Warum sehe ich diese Anzeige? – Du siehst diese Anzeige basierend auf Ihrer Navigation auf unserer Website und den Suchkriterien, die du verwendet hast.
Weitere Energiedaten
Heizungsart
Fußbodenheizung, Luft-/Wasser-Wärmepumpe
Details
Objektbeschreibung
Kurzbeschreibung
penthouse-vodice-erstbezug-meeresnaehe
Objekt
Willkommen in Ihrem eigenen privaten Paradies in Vodice! Dieses exklusive Penthouse überzeugt nicht nur durch seine erstklassige Lage, sondern auch durch seine atemberaubende Aussicht und das einzigartige Design. Genießen Sie den Luxus einer...
Ausstattung
https://www.reker-immobilien.de/kroatien/penthouse-vodice-erstbezug-meeresnaehe_5608?utm_source=ausstattung&utm_medium=txt&utm_campaign=5608
~
Preisinformation
1 Tiefgaragenstellplatz
Weitere Informationen
Stichworte
Tiefgarage vorhanden, Anzahl der Schlafzimmer: 2, Anzahl der Badezimmer: 2, 2 Etagen, Distanz vom Zentrum: 0.25
Anbieter der Immobilie
Reker Immobilien Doo
Micin Stanka 28 A, 22211 Vodice

Online-ID: 2gxhp5u
Referenznummer: 5608
Finde Angebote wie dieses
Hier geht es zu unserem Impressum, den Allgemeinen Geschäftsbedingungen, den Hinweisen zum Datenschutz und nutzungsbasierter Online-Werbung.