

Reker Immobilien Doo
Herr Heiner Reker
+49 ···
Nr. anzeigenPreise & Kosten
Provision für Käufer
3,75 % inkl. MwSt. in Kroatien
Die Wohnung
Wohnungslage
1. Geschoss
Wohnanlage
Details
Objektbeschreibung
Kurzbeschreibung
wohnung-nin-erstbezug-balkon
Objekt
Tauchen Sie ein in den exklusiven Lebensstil an der adriatischen Küste mit dieser luxuriösen 2-Zimmer-Wohnung im 1. Stock in der Nähe von Zadar. Genießen Sie aus dieser exquisiten Neubauwohnung einen atemberaubenden Panoramablick auf das Meer. Das moderne...
Ausstattung
https://www.reker-immobilien.de/kroatien/wohnung-nin-erstbezug-balkon_7581?utm_source=ausstattung&utm_medium=txt&utm_campaign=7581
~
Preisinformation
2 Stellplätze
Weitere Informationen
Stichworte
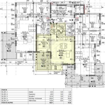
Stellplatz vorhanden, Anzahl der Schlafzimmer: 1, Anzahl der Badezimmer: 1, Balkon-Terrassen-Fläche: 11,00 m²
Anbieter der Immobilie
Reker Immobilien Doo
Micin Stanka 28 A, 22211 Vodice

Online-ID: 2gxhr5u
Referenznummer: 7581
Finde Angebote wie dieses
Hier geht es zu unserem Impressum, den Allgemeinen Geschäftsbedingungen, den Hinweisen zum Datenschutz und nutzungsbasierter Online-Werbung.