
Gebler Immobilien GmbH & Co. KG
Frau Yvonne Vogtland
+49 ···
Nr. anzeigenPreise & Kosten
Provision für Käufer
3,57% inkl. MwSt.
Lage
Werdohl ist eine Stadt in Nordrhein-Westfalen, mit ca. 17.700 Einwohnern. Sie liegt im Märkischen Kreis und befindet sich südlich des Ruhrgebiets.
In Werdohl finden Sie naturnahe Wohnmöglichkeiten und ein abwechslungsreiches Landschaftsbild, das zum Entspannen, Erholen, Radfahren und Wandern einlädt.
Das hier angebotene...
Die Immobilie
Zu diesem Angebot wurden vom Anbieter keine weiteren Daten hinterlegt. Für weitere Informationen bitte den Anbieter kontaktieren.
Nach Informationen fragenDetails
Objektbeschreibung
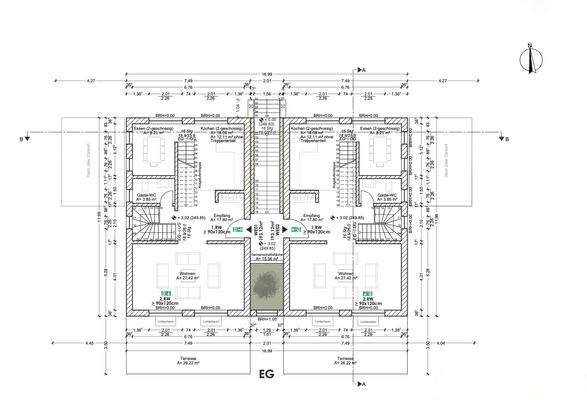
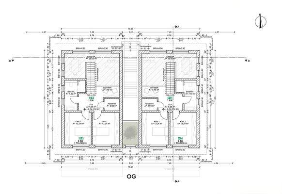
Auf dem ca. 786 m² großen Grundstück in Werdohl Eveking könnte für Sie im Jahr 2025 ein bereits geplantes Architektenhaus realisiert werden.
Die Baugenehmigung liegt bereits vor oder der Architekt plant auch gerne für sie auf Berechnung der Hälfte der Honorarverordnung HOAI nach Ihren Wünschen um.
Hierbei sind zwei...
Weitere Informationen
Sonstiges
Der Makler-Vertrag mit uns kommt durch schriftliche Vereinbarung oder die Inanspruchnahme unserer Maklertätigkeit auf der Basis des Objekt-Exposés und seiner Bedingungen zustande. Die Käufercourtage in Höhe von 3,57% auf den beurkundeten Kaufpreis einschließlich der gesetzlichen Mehrwertsteuer ist bei notariellem...
Anbieter der Immobilie
Gebler Immobilien GmbH & Co. KG
Grünstraße 16, 58095 Hagen
Online-ID: 2gxwb58
Referenznummer: 8882#QnzPzu
Finde Angebote wie dieses
Hier geht es zu unserem Impressum, den Allgemeinen Geschäftsbedingungen, den Hinweisen zum Datenschutz und nutzungsbasierter Online-Werbung.