
Risorgi Wohnbau GmbH
Herr Nico Risorgi
076 ···
Nr. anzeigenDieses Angebot ist Teil des Neubauprojekts
Schopfheim, Friedrich-Hecker-Str. 12
Preise & Kosten
Provision für Käufer
provisionsfrei
Abschreibung/Anlage
als Kapitalanlage geeignet
Lage
Schopfheim liegt im sonnigen Südwesten von Baden-Württemberg und ist ein zentraler sowie beliebter Wohnort für Menschen die im Dreiländereck Lörrach, Basel oder Mulhouse arbeiten. Die S-Bahn Linien S5 und S6 (werktags im ¼ bzw. ½ Std. Takt) bieten die direkte Anbindung nach Lörrach, Weil am Rhein und Basel.
Schopfheim...
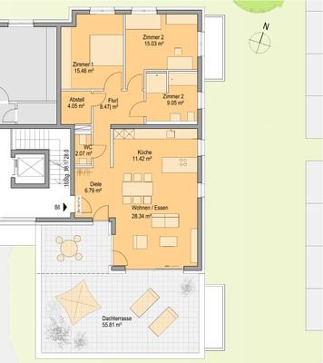
Die Wohnung
Kategorie
Penthouse
Wohnungslage
Dachgeschoss
Bezug
2026
Wohnanlage
Das Neubauprojekt
Energie & Heizung
Warum sehe ich diese Anzeige? – Du siehst diese Anzeige basierend auf Ihrer Navigation auf unserer Website und den Suchkriterien, die du verwendet hast.
Weitere Energiedaten
Energieträger
Solar
Haustyp
KfW 55
Heizungsart
Fußbodenheizung, Luft-/Wasser-Wärmepumpe
Details
Objektbeschreibung
Die zeitmoderne Architektur und die gut aufgeteilten Grundrisse zeichnen dieses Bauvorhaben aus. Alle Wohnungen werden bequem über ein geräumiges Treppenhaus oder Fahrstuhl erschlossen. Sie finden moderne 2-, 3-, und 4-Zimmer Wohnungen mit durchdachter Raumaufteilung und exklusive Penthouse-Wohnungen mit großzügigen...
Ausstattung
Die Wohnungen sind lichtverwöhnt und bieten durch optimalen Zuschnitt Raum für die persönliche Entfaltung. Vor zu viel Sonne oder Licht schützen die elektrisch bedienbaren Außenjalousien in allen Räumen. Das hochwertige Raumgefühl wird durch Terrassen mit Privatgärten oder Balkonen unterstrichen. Jede Wohnung verfügt über...
Weitere Informationen
Schnellere Refinanzierung
Gemäß § 7 Abs. 5a EStG profitieren Sie als Investor von der neu eingeführten degressiven Abschreibungsmöglichkeit in Höhe von 5 Prozent auf die Investitionssumme und reduzieren somit über viele Jahre hinweg erheblich Ihr zu versteuerndes Einkommen.
Bei beispielweise 500.000 Euro...
Dokumente
Anbieter der Immobilie
Risorgi Wohnbau GmbH
Ernst-Friedrich-Gottschalk-Weg 2, 79650 Schopfheim
Online-ID: 2gy7e5p
Finde Angebote wie dieses
Hier geht es zu unserem Impressum, den Allgemeinen Geschäftsbedingungen, den Hinweisen zum Datenschutz und nutzungsbasierter Online-Werbung.