

Garda Haus Srl
Frau Olga Heller
+39 ···
Nr. anzeigenPreise & Kosten
Provision für Käufer
ja maklerprovision im Preis nicht inbegriffen
Das Haus
Kategorie
Villa
Baujahr
1960
Energie & Heizung
Warum sehe ich diese Anzeige? – Du siehst diese Anzeige basierend auf Ihrer Navigation auf unserer Website und den Suchkriterien, die du verwendet hast.
Energieausweistyp
Bedarfsausweis
Gebäudetyp
Wohngebäude
Baujahr laut Energieausweis
1960
Gültigkeit
bis 07.03.2026
Endenergiebedarf
147,13 kWh/(m²·a)
Weitere Energiedaten
Energieträger
Gas
Details
Objektbeschreibung
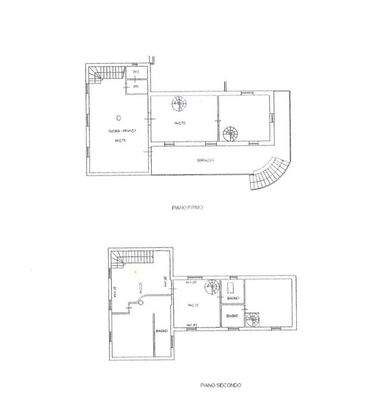
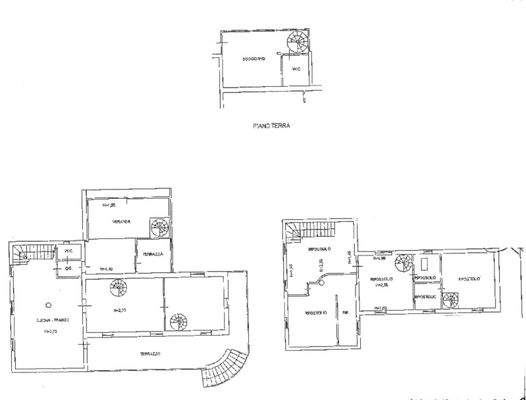
Geräumige freistehende Villa auf drei Ebenen, bestehend aus vier unabhängigen Wohnungen: ideal für ein Tourismusgeschäft, ist es eine ideale Lösung für diejenigen, die eine Immobilieninvestition suchen, die einen regelmäßigen Cashflow generiert.
Möglichkeit der Renovierung in ein Einfamilienhaus, ideal für Familien mit...
Preisinformation
2 Stellplätze
Weitere Informationen
Sonstiges
Wir begleiten Sie nach Terminvereinbarung persönlich zu den Objekten und stehen Ihnen während des gesamten Prozesses des Immobilienerwerbs als starker und kompetenter Partner zur Seite. Mit uns gehen Sie keine Kompromisse ein und überlassen nichts dem Zufall. Umfassender Service ist für uns nicht nur ein Wort...
Anbieter der Immobilie
Garda Haus Srl
Via Meucci 77, 25080 PADENGHE SUL GARDA

Online-ID: 2gypw5x
Referenznummer: DV-304
Finde Angebote wie dieses
Hier geht es zu unserem Impressum, den Allgemeinen Geschäftsbedingungen, den Hinweisen zum Datenschutz und nutzungsbasierter Online-Werbung.