
ÖRAG Immobilien Vermittlung GmbH
Herr Swjatoslaw Sumann
004 ···
Nr. anzeigenPreise & Kosten
inkl. Betriebskosten
Kaution
3-6 BMM zzgl. 20 % USt.
Provision für Mieter
3 BMM zzgl. USt. inkl. MwSt.
Warum sehe ich diese Anzeige? – Du siehst diese Anzeige basierend auf Ihrer Navigation auf unserer Website und den Suchkriterien, die du verwendet hast.
Lage
Die nächsten Straßenbahnhaltestellen befinden sich nur wenige Gehminuten entfernt und ermöglichen schnelle Verbindungen in alle Teile der Stadt. Der Hauptbahnhof Graz ist in etwa 10 Minuten mit der Straßenbahn erreichbar, was die Lage auch für Pendler äußerst attraktiv macht.
Büro-/Praxisfläche
Kategorie
Bürofläche
Baujahr
2001
Bezug
sofort
Energie & Heizung
Warum sehe ich diese Anzeige? – Du siehst diese Anzeige basierend auf Ihrer Navigation auf unserer Website und den Suchkriterien, die du verwendet hast.
Heizwärmebedarf (HWB)
91,49 kWh/(m²·a)
Gesamtenergieeffizienz (fGEE)
1,16
Details
Objektbeschreibung
Kurzbeschreibung
Attraktive Bürofläche- in der Nähe des Grazer Zentrums- zu mieten
Objekt
Attraktive Bürofläche- in der Nähe des Grazer Zentrums- zu mieten
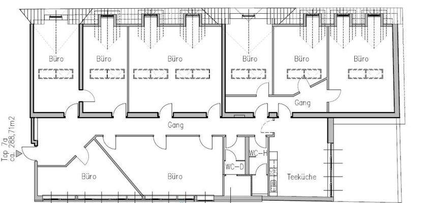
Eine attraktive und optimal aufgeteilte Bürofläche von ca. 289 m² zur Miete in einer der begehrtesten Lagen der Grazer Innenstadt, dieses Bürokonzept...
Ausstattung
Ausstattung & Beschreibung:
- Neue Straßenbahnlinie, nur 4 Gehminuten entfernt
- WC
- Küche
- Aufzug
- Klimatisierung/möglich
- Parkettboden (wird saniert)
- EDV-Verkabelung
Preisinformation
Nettokaltmiete: 3.031,46 EUR
Weitere Informationen
Sonstiges
Wir sind eine Tochtergesellschaft der ÖRAG-Österreichische Realitäten AG, Wien, genannt ÖRAG, und es besteht daher unter Umständen ein sonstiges wirtschaftliches Naheverhältnis im Sinne des Maklergesetzes zur ÖRAG und ihren anderen Tochtergesellschaften in Österreich. Das Naheverhältnis zur ÖRAG ergibt sich zB...
Anbieter der Immobilie
Online-ID: 2gyty5l
Referenznummer: 109245683
Finde Angebote wie dieses
Hier geht es zu unserem Impressum, den Allgemeinen Geschäftsbedingungen, den Hinweisen zum Datenschutz und nutzungsbasierter Online-Werbung.