
Seibel Immobilien GbR
Herr/Frau Paul Seibel
041 ···
Nr. anzeigenPreise & Kosten
Provision für Käufer
Bitte beachte, das Angebot beinhaltet bei Vertragsabschluss die Zahlung einer Provision. Weitere Informationen erhältst Du vom Anbieter.
Lage
Das Haus liegt in der ruhigen und malerischen Gemeinde Hohnstorf (Elbe), nur wenige Gehminuten von der Elbe entfernt. Die idyllische Lage bietet zahlreiche Freizeitmöglichkeiten, darunter Spaziergänge entlang des Flusses, Bootsfahrten und Wassersportarten. Die Nähe zur Elbe sorgt für eine angenehme, naturverbundene Umgebung...
Das Renditeobjekt
Kategorie
Bungalow
Baujahr
1976
Geschosse
1 Geschoss
Energie & Heizung
Warum sehe ich diese Anzeige? – Du siehst diese Anzeige basierend auf Ihrer Navigation auf unserer Website und den Suchkriterien, die du verwendet hast.
Energieausweistyp
Bedarfsausweis
Gebäudetyp
Wohngebäude
Baujahr laut Energieausweis
1976
Wesentliche Energieträger
Gas
Gültigkeit
17.12.2024 bis 16.12.2024
Effizienzklasse
H
Endenergiebedarf
281,91 kWh/(m²·a)
Weitere Energiedaten
Energieträger
Gas
Heizungsart
Ofen, Zentralheizung
Details
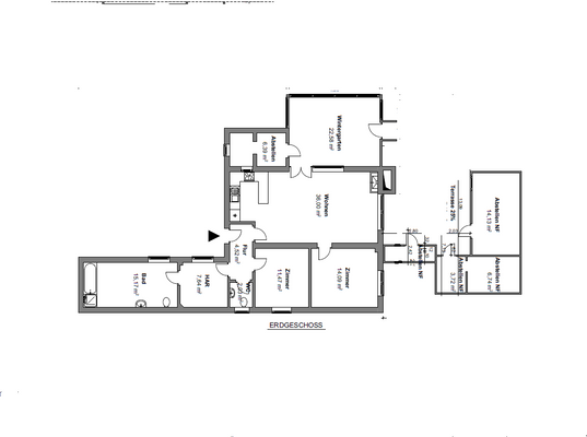
Objektbeschreibung
Ebenerdiger Bungalow in Hohnstorf
Zum Verkauf steht ein gemütlicher Bungalow aus dem Baujahr 1976, der sich auf einem großzügigen Grundstück mit 1.291 m² befindet. Mit einer Wohnfläche von 127 m² bietet dieses Haus ausreichend Platz für komfortables Wohnen.
Wenn Sie an einem Haus interessiert sind, das den Komfort des...
Ausstattung
Ausstattung:
•Zimmer: Drei geräumige Zimmer, die vielfältige Gestaltungsmöglichkeiten bieten.
•Wohnfläche: Insgesamt 127 m² gut aufgeteilte Wohnfläche.
•Grundstück: Großzügiges Eigentumsgrundstück von 1.291 m².
•Heizung: Effiziente Gasheizung, erneuert im Jahr 2010.
•Wintergarten: Ein gemütlicher Wintergarten...
Weitere Informationen
Besichtigungstermine
Sonstiges:
- Provision: Für Käufer provisionsfrei.
- Besichtigungstermine nach Vereinbarung.
- Zwischenverkauf und Irrtümer vorbehalten.
Sie haben eine Immobilie zu verkaufen oder zu vermieten?
Gerne unterstützen wir Sie dabei!
Vereinbaren Sie jetzt einen Beratungstermin und...
Anbieter der Immobilie
Seibel Immobilien GbR
Memeler Straße 28, 21337 Lüneburg
Online-ID: 2h2235a
Referenznummer: 0169-2024
Finde Angebote wie dieses
Hier geht es zu unserem Impressum, den Allgemeinen Geschäftsbedingungen, den Hinweisen zum Datenschutz und nutzungsbasierter Online-Werbung.