Bürofläche zur Miete • provisionsfrei6,25 €/m²1.881 m² Bürofläche • teilbar ab 380 m²
6,25 €
/m²
1.881 m² Bürofläche • teilbar ab 380 m²
Flexible Büroflächen in gepflegtem Gebäude
Merkmale
- Bezug: nach Vereinbarung
- Personenaufzug
- Einbauküche
- Bodenbelag: Teppich
- 115 Stellplätze: 115 Außen-Stellplätze
- voll klimatisiert
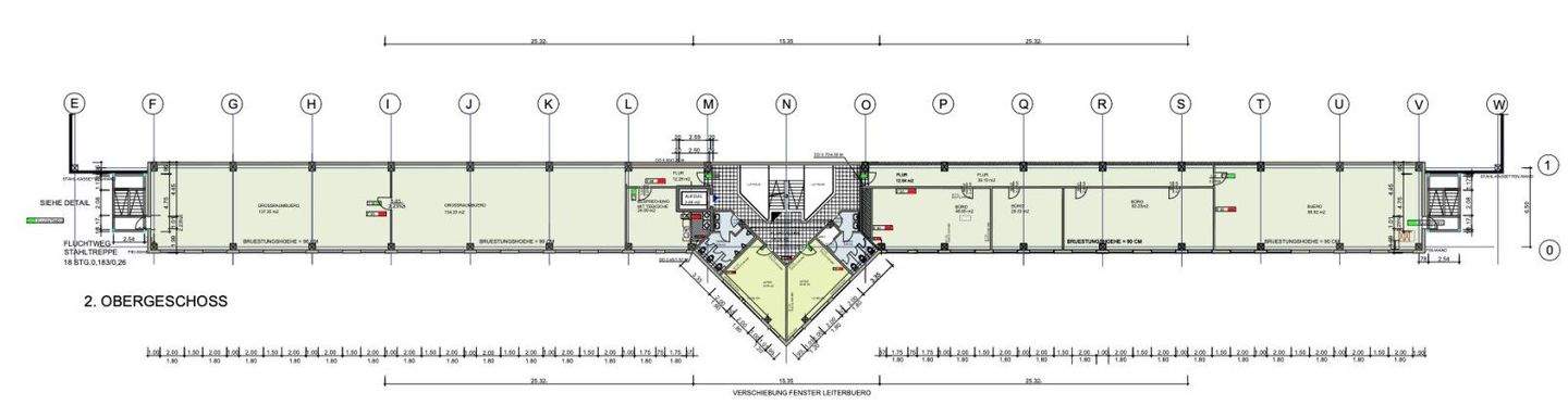
Grundrisse
Grundrisse
1 / 1
Bausubstanz und Energie
Möchtest du Details zum Energieverbrauch?

- Baujahr2001
- Zustand der ImmobilieGepflegt
Mietkosten
Nettomiete
6,25 €/m²
6,25 €
Nebenkosten
1,80 €
Zusätzliche Kosten
Miete pro Stellplatz
30 €
Provision für Mieter
provisionsfrei
Kaution
keine Angabe
Weitere Preisinformationen
115 Stellplätze, Miete je: 30,00 EUR
Lage

Ginsheim-Gustavsburg (65462)
Der Anbieter hat die genaue Adresse nicht freigegeben
Weitere Informationen
Weitere Services
Lust auf eine Besichtigung?
Eine Frage zur Immobilie?
Über den Anbieter
Lange Straße 59, 60311 Frankfurt am Main
6 Jahre Partnerschaft
Herr Dean VukovicDein Kontakt
Online-ID: 23DUWR8Y3MGU
Referenznummer: 2596
Wie zufrieden bist du mit dieser Seite (nicht mit der Immobilie selbst)?
