
Evernest GmbH
Leon Dombrowski
+49 ···
Nr. anzeigenPreise & Kosten
Provision für Käufer
Provisionsfrei für den Käufer
Lage
Willkommen an einem Standort, der durch seine exzellente Verkehrsanbindung und Infrastruktur besticht. Hier genießen Sie kurze Wege und eine optimale Erreichbarkeit aller wichtigen Ziele:
Öffentliche Verkehrsmittel: In nur einer Minute zu Fuß erreichen Sie die nächste Haltestelle, wodurch Ihnen der Nahverkehr sämtliche...
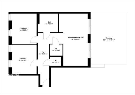
Die Wohnung
Wohnungslage
Erdgeschoss
Wohnanlage
Energie & Heizung
Warum sehe ich diese Anzeige? – Du siehst diese Anzeige basierend auf Ihrer Navigation auf unserer Website und den Suchkriterien, die du verwendet hast.
Energieausweistyp
Bedarfsausweis
Gebäudetyp
Wohngebäude
Effizienzklasse
A
Endenergiebedarf
31,00 kWh/(m²·a)
Weitere Energiedaten
Energieträger
Elektro
Details
Objektbeschreibung
Willkommen in Ihrer neuen Traumwohnung im Herzen von Willich! Diese moderne Wohnung im Erdgeschoss sucht eine neue Familie oder ein junges Pärchen, die das Leben in vollen Zügen genießen möchten.
Das Highlight dieser Immobilie sind die komfortablen Wohnungen mit bodentiefen Fenstern, die für eine lichtdurchflutete...
Ausstattung
. Luft-Wärme-Pumpe mit hauseigener PV-Anlage
. Fußbodenheizung - separate Einstellung pro Zimmer
. TG-Stellplatz optional verfügbar
. Separater Lift in jedem Haus
. Großer Gemeinschaftsgarten
. Helle, komfortable Wohnungen mit bodentiefen Fenstern
. Bad mit Dusche und Gäste-WC
. Große Terrasse und eigener...
Weitere Informationen
Stichworte
Tiefgarage vorhanden, Anzahl der Schlafzimmer: 2, Anzahl der Badezimmer: 1, Anzahl der separaten WCs: 1, Anzahl Terrassen: 1, Balkon-Terrassen-Fläche: 10,00 m²
Anbieter der Immobilie
Online-ID: 2h27b59
Referenznummer: L-H8WJ67Q
Finde Angebote wie dieses
Hier geht es zu unserem Impressum, den Allgemeinen Geschäftsbedingungen, den Hinweisen zum Datenschutz und nutzungsbasierter Online-Werbung.