

corealis Commercial Real Estate GmbH
Herr Jens Reuther
021 ···
Nr. anzeigenPreise & Kosten
Provision für Mieter
provisionsfrei
Warum sehe ich diese Anzeige? – Du siehst diese Anzeige basierend auf Ihrer Navigation auf unserer Website und den Suchkriterien, die du verwendet hast.
Lage
Die Liegenschaft befindet sich im Düsseldorfer Norden im Büromarkt Düsseldorf Nordost, direkt am Aaper Wald. Durch die verkehrsgünstige Lage des Objektes erreichen Sie in 7 Minuten die Autobahn A52 Richtung Düsseldorfer Flughafen. Auch die öffentliche Anbindung ist mit der vor der Tür liegenden Haltestelle "Mörsenbroicher...
Büro-/Praxisfläche
Kategorie
Bürofläche
Baujahr
1975
Bezug
sofort
Energie & Heizung
Warum sehe ich diese Anzeige? – Du siehst diese Anzeige basierend auf Ihrer Navigation auf unserer Website und den Suchkriterien, die du verwendet hast.
Weitere Energiedaten
Energieträger
Gas
Heizungsart
Zentralheizung
Details
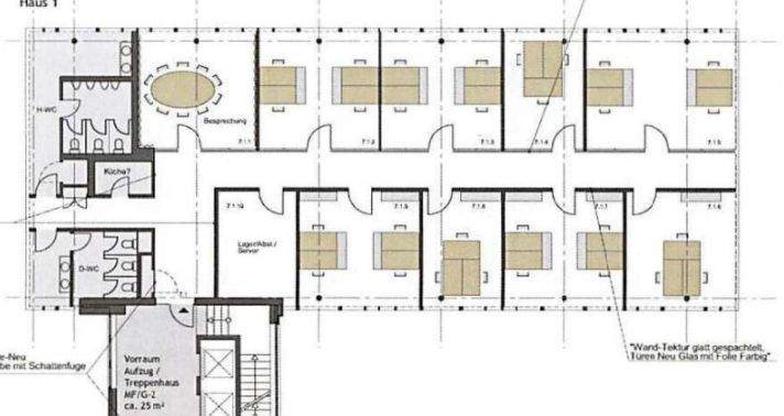
Objektbeschreibung
Der Gebäudekomplex besteht aus drei Bauteilen, welche über ein repräsentatives Foyer miteinander verbunden sind. Alle Bauteile wurden im Jahre 1998 vollständig saniert und auf einen hochwertigen Gebäudestandard verbaut. Die Büroimmobilie besticht durch ein Restaurant im Eingangsbereich, E-Ladesäulen, Leihfahrräder und Duschen...
Ausstattung
- Raumaufteilung nach Mieterwunsch
- vorgerichtete Teeküchen je Mieteinheit
- getrennte Damen- und Herren WC Einheiten
- Bodenbelag nach Mieterwunsch
- Kühldecken im Haus 3
- E-Lademöglichkeit
Preisinformation
45 Stellplätze, Miete je: 65,00 EUR
12 Tiefgaragenstellplätze, Miete je: 65,00 EUR
Nebenkosten pro qm: 4,00 EUR
Weitere Informationen
Sonstiges
- persisches Restaurant im Erdgeschoss
- nachhaltige E-Ladesäulen
- Leihfahrräder für idyllische Touren im Grafenberger Wald
- Duschen mit Schließfächer
- Konferenzetage zur tageweisen Anmietung
- besetzter Empfang - EUR 0,44 Servicevertrag (Zahlung via sep. Vertrag, nicht über...
Anbieter der Immobilie
corealis Commercial Real Estate GmbH
Hohe Straße 8-10, 40213 Düsseldorf

Online-ID: 2h3q85m
Referenznummer: 2031
Finde Angebote wie dieses
Hier geht es zu unserem Impressum, den Allgemeinen Geschäftsbedingungen, den Hinweisen zum Datenschutz und nutzungsbasierter Online-Werbung.