
Trummer Immobilien GmbH & Co. KG
Herr Roland Trummer
094 ···
Nr. anzeigenPreise & Kosten
Kaution
3,00 Soweit nicht anders erwähnt 3 Monatsmieten
Provision für Mieter
Ortsübliche Provision vom Käufer/Mieter nur im Erfolgsfalle
Warum sehe ich diese Anzeige? – Du siehst diese Anzeige basierend auf Ihrer Navigation auf unserer Website und den Suchkriterien, die du verwendet hast.
Lage
Ansbach
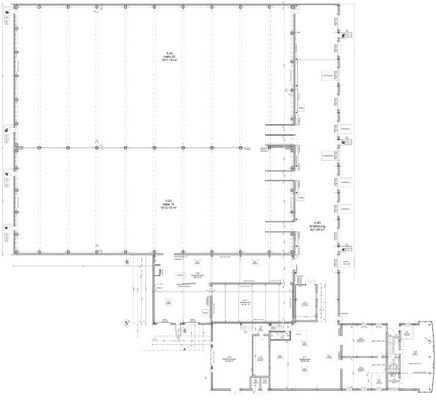
Die Industriefläche
Kategorie
Lagerhalle
Baujahr
1986
Bezug
sofort
Details
Objektbeschreibung
Kurzbeschreibung
Gerne stehen wir für eine Besichtigung zur Verfügung.
Objekt
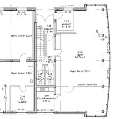
Das verkehrsgünstig gelegene Anwesen zur Vermietung befindet sich in einem Gewerbegebiet in Ansbach. Über die nahe gelegene Autobahn A 6 und die Bundesstraßen B 13 und B 14 ist eine gute Verkehrsanbindung gegeben. Eine Bushaltestelle...
Ausstattung
Lage: Ansbach
Mietpreis: auf Anfrage
Nebenkosten: auf Anfrage
Fläche: ca. 5.439 m²
Grundstück: ca. 18.096 m²
Baujahr: 1986
Kaution: 3 Monatsmieten
Geschoss(e): Erdgeschoss
Bezug: sofort
teilbar ab: nein
Hallenhöhe: ca. 10,50 m
Erschließung: erschlossen
Bodenbelastung: 2.500...
Weitere Informationen
Sonstiges
Um eine schnelle Bearbeitung zu gewähren benötigen wir Ihre Telefonnummer sowie Ihre komplette Adresse.
Stichworte
Lagerfläche: 5.439,00 m², Nutzfläche: 5.439,00 m², Gesamtfläche: 18.096,00 m², Freifläche: 12.657,00 m², Bundesland: Bayern, Distanz zur Autobahn: 2, Distanz zum Bus: .3, Distanz zum...
Anbieter der Immobilie

Trummer Immobilien GmbH & Co. KG
Online-ID: 2h42k5g
Referenznummer: VH 3869
Finde Angebote wie dieses
Hier geht es zu unserem Impressum, den Allgemeinen Geschäftsbedingungen, den Hinweisen zum Datenschutz und nutzungsbasierter Online-Werbung.