
Markus Fugel
Herr Nikolas Ronczka
015 ···
Nr. anzeigenPreise & Kosten
Provision für Käufer
3% zzgl. Mehrwertsteuer
Lage
Die Gemeinde Jahnsdorf befindet sich etwa zehn Kilometer südwestlich des Chemnitzer Stadtzentrums und sechs Kilometer nordöstlich der Großen Kreisstadt Stollberg/Erzgeb. Innerhalb des rund 26 km² großen Gemeindegebietes befindet sich der Hauptort Jahnsdorf im Südosten. Das Objekt befindet sich direkt am Verkehrslandeplatz...
Die Industriefläche
Kategorie
Produktionshalle
Baujahr
1994
Bezug
sofort
Energie & Heizung
Warum sehe ich diese Anzeige? – Du siehst diese Anzeige basierend auf Ihrer Navigation auf unserer Website und den Suchkriterien, die du verwendet hast.
Energieausweistyp
Bedarfsausweis
Gebäudetyp
Nicht-Wohngebäude
Wesentliche Energieträger
Flüssiggas
Endenergiebedarf
377,40 kWh/(m²·a)
Weitere Energiedaten
Energieträger
Flüssiggas
Details
Objektbeschreibung
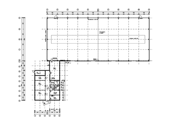
Gebäude für Produktion, Werkstätten oder Lagergebäude mit Büro- und Sozialräumen in Jahnsdorf zu verkaufen. Stahlrahmenbauweise (Raster 5 m - 5,50 m) mit Sandwichelementen ohne Innenwände, Flachdach mit Oberlicht, Tragschale aus Trapezblechprofilen mit Bitumendichtbahnen.
Ausstattung
Hallenhöhe: 4,82 m - 5,33 m - 4,82 m
Hallenmaße: 50 m x 22 m
Andienung ebenerdig über 10 Rolltore (Maße je Breite 4 m Höhe 4,50 m)
Heizung: steuerbare Decken- und Wandheizkörper / in Halle Gebläseheizung
Energie: 160 kVA
Bauart: Stahlrahmenbauweise (Raster 5 m - 5,50 m) mit Sandwichelementen ohne...
Weitere Informationen
Besichtigungstermine
Besichtigung nach Absprache möglich!
Anbieter der Immobilie
Markus Fugel
Hofer Straße 7d, 09224 Chemnitz-Mittelbach
Online-ID: 2h4kk5z
Finde Angebote wie dieses
Hier geht es zu unserem Impressum, den Allgemeinen Geschäftsbedingungen, den Hinweisen zum Datenschutz und nutzungsbasierter Online-Werbung.