
Trummer Immobilien GmbH & Co. KG
Herr Roland Trummer
094 ···
Nr. anzeigenPreise & Kosten
Kaution
3.450,00 Soweit nicht anders erwähnt 3 Monatsmieten
Provision für Mieter
Ortsübliche Provision vom Käufer/Mieter nur im Erfolgsfalle
Warum sehe ich diese Anzeige? – Du siehst diese Anzeige basierend auf Ihrer Navigation auf unserer Website und den Suchkriterien, die du verwendet hast.
Lage
Regenstauf
Büro-/Praxisfläche
Kategorie
Bürofläche
Bezug
sofort
Energie & Heizung
Warum sehe ich diese Anzeige? – Du siehst diese Anzeige basierend auf Ihrer Navigation auf unserer Website und den Suchkriterien, die du verwendet hast.
Weitere Energiedaten
Energieträger
Gas
Details
Objektbeschreibung
Kurzbeschreibung
Gerne stehen wir für eine Besichtigung zur Verfügung.
Objekt
Die modernen Büroflächen befinden sich in verkehrsgünstiger Lage in Regenstauf. Über die nahe Autobahn A 93 und Bundesstraße B 15 ist eine hervorragende Anbindung gegeben. Eine Bushaltestelle befindet sich in der Nähe.
Die...
Ausstattung
Lage: Regenstauf
Mietpreis: EUR 1.150,-
Nebenkosten: EUR 338,-
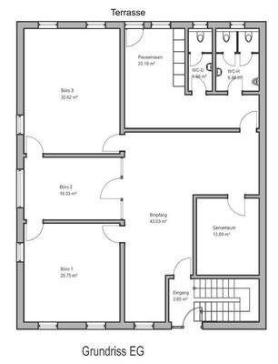
Fläche: ca. 169 m²
Zimmeranzahl: 7
letzte Modernisierung: 2024
Kaution: EUR 3.450,-
Geschoss(e): EG oder OG
Bezug: sofort
teilbar ab: nein
Stellplatzanzahl: 5
Fußweg zum RVV: 4 min.
Fahrtzeit Bahnhof: 10 min...
Preisinformation
1 Stellplatz
Nettokaltmiete: 1.150,00 EUR
Weitere Informationen
Sonstiges
Um eine schnelle Bearbeitung zu gewähren benötigen wir Ihre Telefonnummer sowie Ihre komplette Adresse.
Stichworte
Stellplatz vorhanden, Nutzfläche: 169,00 m², Bundesland: Bayern, modernisiert: 2024, Distanz zur Autobahn: 1, Distanz zum Bus: .4, Distanz zum Hauptbahnhof: 5, Distanz zum Flughafen:...
Anbieter der Immobilie

Trummer Immobilien GmbH & Co. KG
Online-ID: 2h54k5g
Referenznummer: VB 3871a
Finde Angebote wie dieses
Hier geht es zu unserem Impressum, den Allgemeinen Geschäftsbedingungen, den Hinweisen zum Datenschutz und nutzungsbasierter Online-Werbung.