

Czogalla Immobilien - eine Marke der Versicherung- & Finanzmakler Czogalla GmbH & Co. KG
Herr Jens Kielkopf
083 ···
Nr. anzeigenPreise & Kosten
Provision für Käufer
4,88 % (inkl. MwSt.)
Unser Nachweis- und/oder Vermittlungshonorar beträgt vom Käufer bei einem Kauf 4,88% des Kaufpreises, inklusive der gesetzlichen Mehrwertsteuer, fällig bei Vertragsabschluss.
Lage
Saline di Volterra liegt etwa 10 km westlich von Volterra und ist für seine historischen Salzgewinnungsanlagen bekannt. Eingebettet in die hügelige Landschaft verbindet der Ort Geschichte und Natur. Neben der Salzproduktion bietet Saline di Volterra eine ruhige, authentische Atmosphäre mit guten Verbindungen zu den...
Die Wohnung
Kategorie
Maisonette
Bezug
sofort
Derzeitige Nutzung
frei
Wohnanlage
Energie & Heizung
Warum sehe ich diese Anzeige? – Du siehst diese Anzeige basierend auf Ihrer Navigation auf unserer Website und den Suchkriterien, die du verwendet hast.
Energieausweistyp
Bedarfsausweis
Gebäudetyp
Wohngebäude
Wesentliche Energieträger
Gas
Effizienzklasse
F
Endenergiebedarf
175,00 kWh/(m²·a)
Weitere Energiedaten
Energieträger
Gas
Heizungsart
Zentralheizung
Details
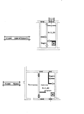
Objektbeschreibung
Inmitten der wunderschönen toskanischen Landschaft bieten wir diese historische Wohnung zum Verkauf, die Teil eines Komplexes mit insgesamt sechs Wohneinheiten ist. Das gesamte Gebäude war einst eine Mühle.
Es handelt sich um eine Maisonette-Wohnung mit einem separaten Eingang und einem privaten Garten von ca. 70m². Der...
Weitere Informationen
Alle Infos im Überblick:
Objektart: Wohnung (Maisonette)
Ort (Teilort): Saline di Volterra
Wohnfläche: ca. 100 m²
Zimmer: 3,0
Badezimmer: 2,0
Meerblick: Nein
Pool: Nein
Geschoss: EG + OG
Stellplatz: Ja (Carport)
Bodenbelag: Fliesen
Bauweise: massiv
Energieausweis...
Anbieter der Immobilie
Czogalla Immobilien - eine Marke der Versicherung- & Finanzmakler Czogalla GmbH & Co. KG
Luitpoldstr. 29 , 87724 Ottobeuren

Online-ID: 2h5j95k
Finde Angebote wie dieses
Hier geht es zu unserem Impressum, den Allgemeinen Geschäftsbedingungen, den Hinweisen zum Datenschutz und nutzungsbasierter Online-Werbung.