
Seenland-Immobilien
Frau Elke Schöne
+49 ···
Nr. anzeigenPreise & Kosten
Provision für Käufer
3,5% inkl. MwSt.
Lage
Die Scheune liegt in einer kleinen, jedoch gut erschlossenen Gemeinde, die eine exzellente Infrastruktur bietet:
Bildungseinrichtungen: Grundschule, freie Schule mit beruflichem Gymnasium und Kindergarten.
Einkaufsmöglichkeiten: Ein Edeka-Supermarkt und weitere Geschäfte des täglichen Bedarfs sind schnell...
Das Haus
Baujahr
1940
Details
Objektbeschreibung
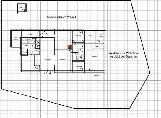
Dieses einzigartige Anwesen bietet eine Fülle von Möglichkeiten zur Nutzung und Gestaltung. Die ca. 363 m² große Scheune, die ursprünglich aus älterer Zeit stammt, wurde im Jahr 2000 teilweise umgebaut und beherbergt nun nicht nur einen großzügigen Vereinsraum, sondern auch eine charmante Gaststätte mit einem idyllischen...
Weitere Informationen
Stichworte
Anzahl der Badezimmer: 3, 2 Etagen, modernisiert: 2000
Anbieter der Immobilie

Seenland-Immobilien
Online-ID: 2h6u55f
Referenznummer: 152804394#WpK5Hd
Finde Angebote wie dieses
Hier geht es zu unserem Impressum, den Allgemeinen Geschäftsbedingungen, den Hinweisen zum Datenschutz und nutzungsbasierter Online-Werbung.