
RUHR REAL GmbH
Herr Frederic Jeschke
+49 ···
Nr. anzeigenPreise & Kosten
zzgl. Nebenkosten
Provision für Mieter
provisionsfrei
Warum sehe ich diese Anzeige? – Du siehst diese Anzeige basierend auf Ihrer Navigation auf unserer Website und den Suchkriterien, die du verwendet hast.
Lage
Das Objekt befindet sich nahe der Bochumer Innenstadt, in unmittelbarer Nähe zur Jahrhunderthalle. Die Autobahnen 40 und 448 sind nur wenige Fahrminuten entfernt. Direkt vor dem Gebäude befindet sich eine U-Bahn Station, über die man in wenigen Minuten die Innenstadt erreicht. Die S-Bahnstation Bochum-Ehrenfeld ist fußläufig...
Büro-/Praxisfläche
Kategorie
Bürofläche
Bezug
01.01.2026
Details
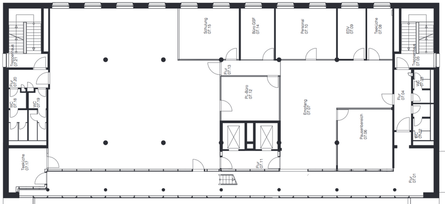
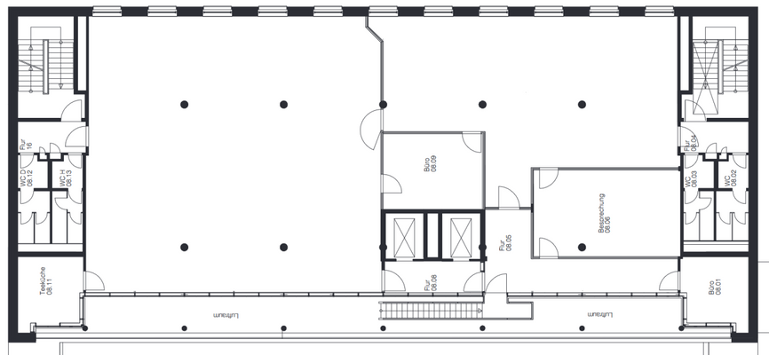
Objektbeschreibung
Das moderne Bürogebäude mit seiner außergewöhnlichen Architektur befindet sich in direkter Lage zum Westpark in Bochum. Der repräsentative Eingangsbereich führt den Nutzer mithilfe eines Personenaufzuges, oder dem Treppenhaus, problemlos in die verschiedenen Ebenen des Gebäudes. Der zukünftige Mieter kann den Grundriss und...
Ausstattung
. Bodenbelag: Teppichboden
. EDV-Verkabelung: vom Vormieter
. Kabelführung: Bodentanks
. Sonnenschutz: außenliegend, elektrisch
. Teeküche: voll ausgestattet
. Beleuchtung: Pendelleuchten
. Kühlung: Umluftgeräte & Deckenkühlung
Preisinformation
Nettokaltmiete: 11,00 EUR
Weitere Informationen
Sonstiges
Es gelten ausschließlich unsere AGB (www.ruhr-real.de/agb). Wir möchten Sie darauf hinweisen, dass die Angaben ausschließlich auf den uns vom Eigentümer übermittelten Unterlagen und Informationen basieren. Für Richtigkeit und Vollständigkeit übernehmen wir keine Gewähr. Zwischenvermietung vorbehalten.
Anbieter der Immobilie

RUHR REAL GmbH
Holsterhauser Platz 2, 45147 Essen
Online-ID: 2h8nr5p
Referenznummer: 1211/E7
Finde Angebote wie dieses
Hier geht es zu unserem Impressum, den Allgemeinen Geschäftsbedingungen, den Hinweisen zum Datenschutz und nutzungsbasierter Online-Werbung.