
corealis Commercial Real Estate GmbH
004 ···
Nr. anzeigenPreise & Kosten
Provision für Mieter
provisionsfrei
Warum sehe ich diese Anzeige? – Du siehst diese Anzeige basierend auf Ihrer Navigation auf unserer Website und den Suchkriterien, die du verwendet hast.
Lage
Die Liegenschaft am Steinhof 3-5 in Erkrath überzeugt durch ihre verkehrsgünstige Lage: Die Autobahnen A3 und A46 sind in wenigen Minuten erreichbar und bieten eine schnelle Anbindung an Düsseldorf, Köln sowie das gesamte Ruhrgebiet.
Auch der öffentliche Nahverkehr ist hervorragend ausgebaut. Mehrere Buslinien...
Büro-/Praxisfläche
Kategorie
Bürofläche
Bezug
kurzfristig
Energie & Heizung
Warum sehe ich diese Anzeige? – Du siehst diese Anzeige basierend auf Ihrer Navigation auf unserer Website und den Suchkriterien, die du verwendet hast.
Weitere Energiedaten
Heizungsart
Zentralheizung
Details
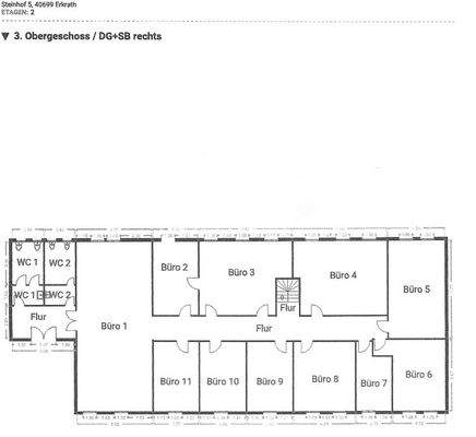
Objektbeschreibung
Dieses gepflegte Bürogebäude in Erkrath steht ab sofort zur Vermietung und bietet eine ideale Arbeitsumgebung für Unternehmen, die Wert auf Funktionalität und ein professionelles Erscheinungsbild legen. Die Immobilie beeindruckt durch ihre solide Bauweise und eine architektonisch ansprechende Gestaltung.
Ein...
Weitere Informationen
Stichworte
Gesamtfläche: 10.775,00 m², Anzahl der Gewerbeeinheiten: 1, Bundesland: Nordrhein-Westfalen
Anbieter der Immobilie
Online-ID: 2h8s85m
Referenznummer: 8865
Finde Angebote wie dieses
Hier geht es zu unserem Impressum, den Allgemeinen Geschäftsbedingungen, den Hinweisen zum Datenschutz und nutzungsbasierter Online-Werbung.